- 価格
-
3700万円台~8200万円台(100万円単位)(予定)
月々の支払い額を見る
- 専有面積
-
53.88㎡~85.57㎡
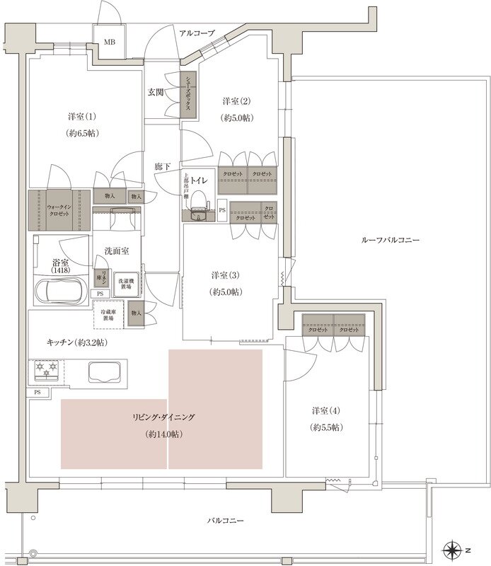
- 間取り
-
2LDK、3LDK
間取りを見る(4件)
- 販売スケジュール
-
2025年11月中旬 販売開始予定

