- 価格
-
3848万円~5968万円
月々の支払い額を見る
- 専有面積
-
78.30㎡~102.93㎡
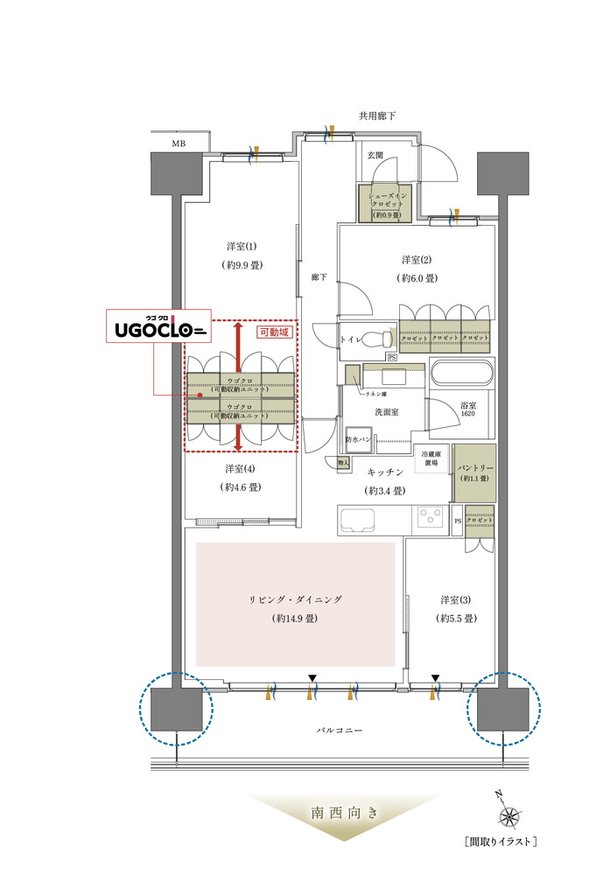
- 間取り
-
2LDK+S(納戸)~5LDK
間取りを見る(6件)
- 販売スケジュール
-
先着順申込み受付中

