- 価格
-
3120万円~8850万円
月々の支払い額を見る
- 専有面積
-
43.9㎡~83.04㎡
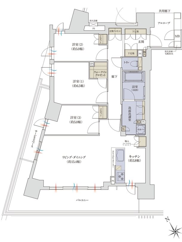
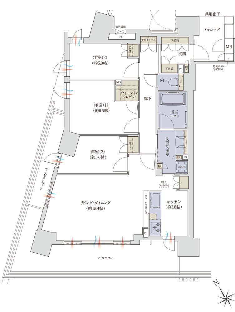
- 間取り
-
1LDK~3LDK
間取りを見る(6件)
- 販売スケジュール
-
先着順申込受付中

