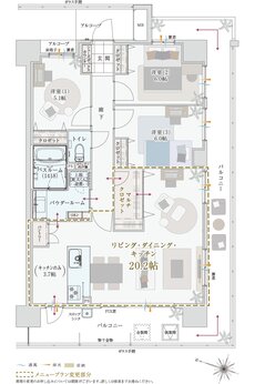
間取り
この物件の詳細情報に戻る3LDK掲載5件
※掲載の外観完成予想図は図面を基に描き起こしたもので設計・設備・仕様・色調・植栽等、実際とは多少異なる場合がございます。また、行政官庁の指導または施工上の都合により、形状や仕上等が変更となる場合がございます。予めご了承ください。
関連する他の物件も見てみる
特徴
- 子どもと暮らす(107)
- I型キッチン(100)
- 対面キッチン(100)
- ウォークインクローゼット(89)
- 平置き駐車場(81)
- モデルルーム公開中(74)
- 食器洗い乾燥機(食洗機)(72)
- 浴室暖房換気乾燥機(71)
- 駐車場100%以上(70)
- ペット可(68)
- 一人暮らし・二人暮らし向け(67)
- ハンズフリーキー(57)
- スロップシンク(57)
- 2面バルコニー(54)
- 出入口が2か所以上あるキッチン(52)
- エコマンション(51)
- 複層ガラス(ペアガラス)(51)
- 浴室に窓(47)
- ZEHマンション(44)
- フラット35(26)
- 南西向き(24)
- アルコーブ(22)
- 防災設備(17)
- L字バルコニー(16)
- 省エネ対応(13)
- ルーフバルコニー(12)
- 第一種低層住居専用地域(1)
地域
間取り
価格帯
不動産会社
駅
沿線

