- 価格
-
3990万円~6130万円
月々の支払い額を見る
- 専有面積
-
59.00㎡~84.53㎡
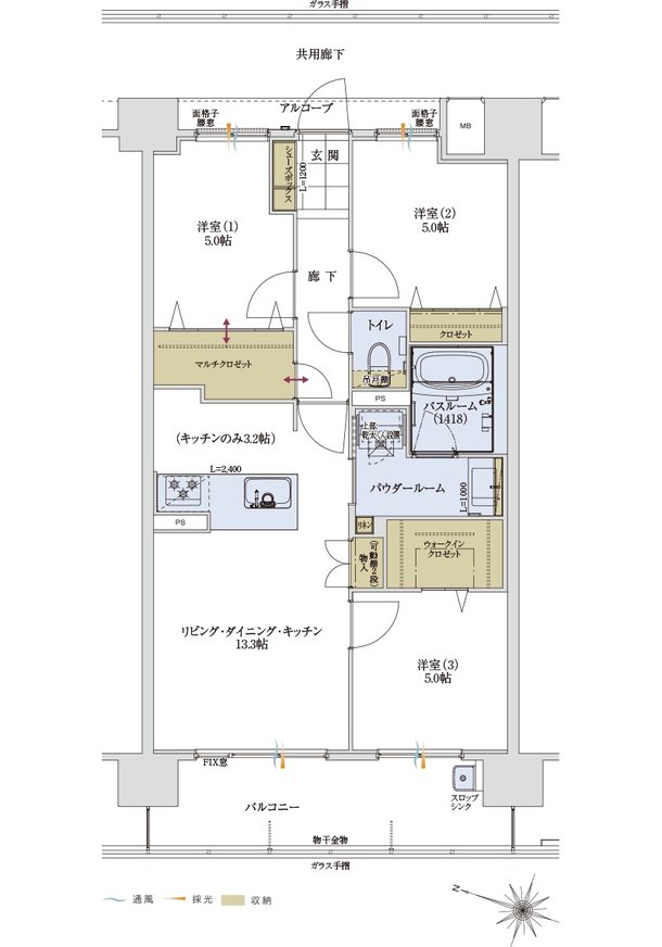
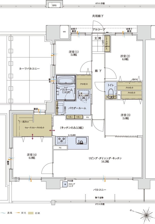
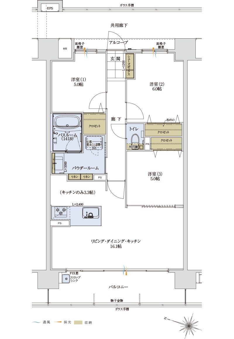
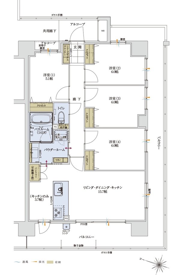
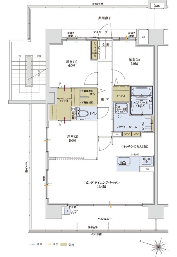
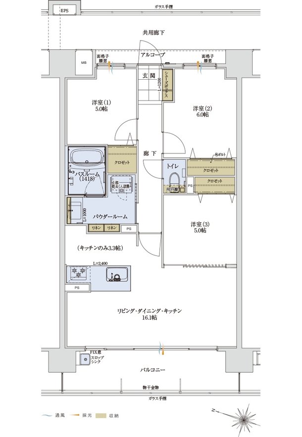
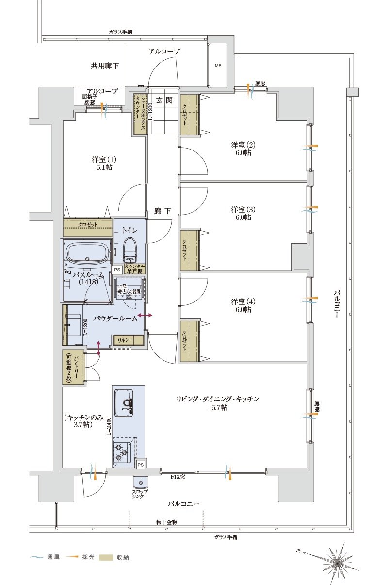
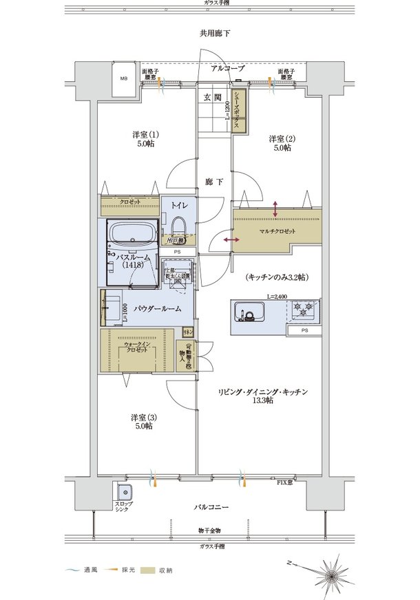
- 間取り
-
2LDK、3LDK、4LDK
間取りを見る(5件)
- 販売スケジュール
-
先着順申込み受付中 ※先着順につき、ご希望の住戸が売約済みの場合がございます。あらかじめご了承ください。

