- 価格
-
4450万円~7390万円
月々の支払い額を見る
- 専有面積
-
67.82㎡~92.92㎡
- 間取り
-
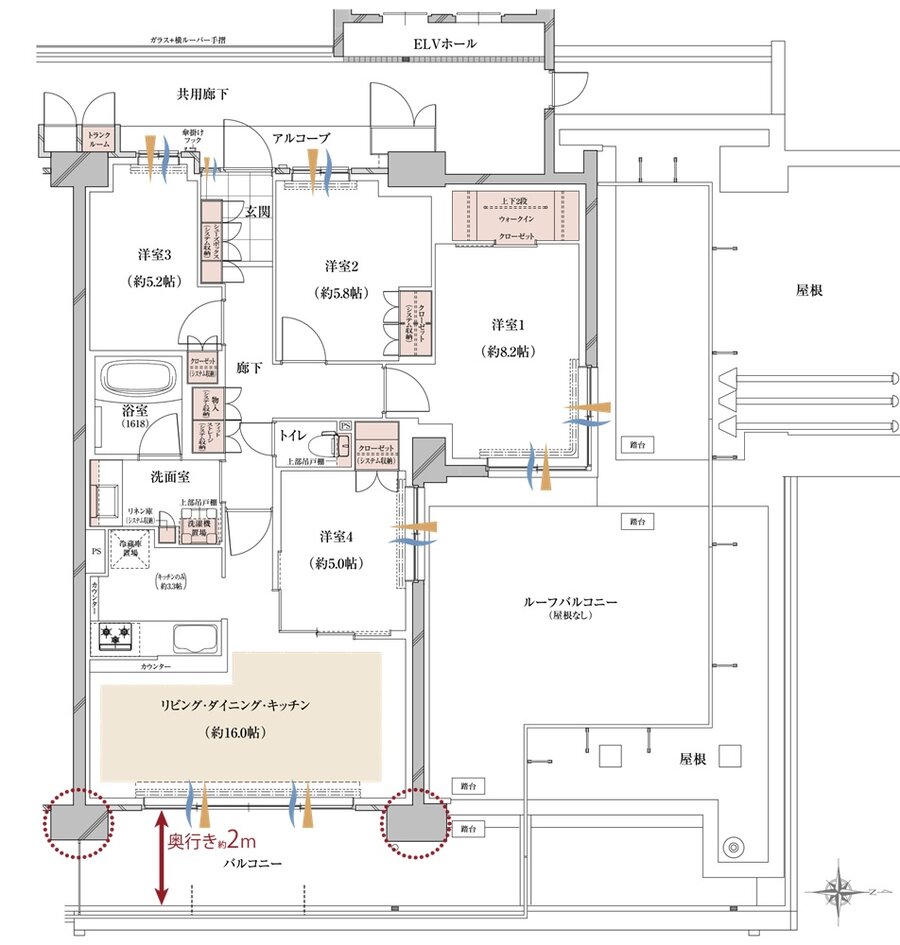
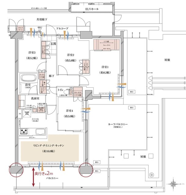
1LDK+S~4LDK
間取りを見る(5件)
- 販売スケジュール
-
先着順申込み受付中

