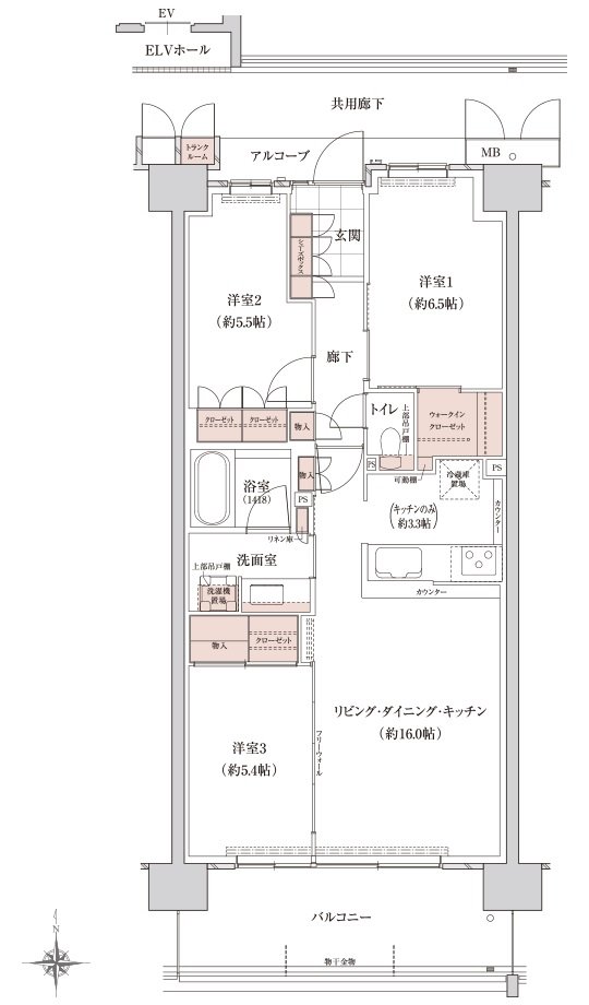
(仮称)メイキタPROJECT 間取り I-D TYPE
タイプ

I-D TYPE

間取り

4LDK+WIC+SIC+N

専有面積

92.92㎡

バルコニー面積

13.6㎡

備考

※専有面積にトランクルーム面積0.40㎡含む
サービスバルコニー面積/3.45㎡
ポーチ面積/4.26㎡

  • アルコーブ
  • 玄関からリビングが見えない間取り
  • 可変式間仕切り
  • ウォークインクローゼット
  • シューズインクローゼット
  • 広いバルコニー
  • 2面バルコニー
  • 南向き
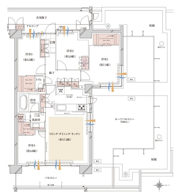
(仮称)メイキタPROJECT 間取り I-Ur TYPE
タイプ

I-Ur TYPE

間取り

4LDK+3WIC+TR

専有面積

92.26㎡

バルコニー面積

17.27㎡

備考

ルーフバルコニー面積/46.46㎡
アルコーブ面積/3.49㎡
※専有面積にトランクルーム面積0.35㎡含む

  • アルコーブ
  • ウォークインクローゼット
  • 2面バルコニー
  • ルーフバルコニー
  • トランクルーム
  • 東向き
(仮称)メイキタPROJECT 間取り I-H 1 TYPE
タイプ

I-H 1 TYPE

間取り

3LDK+2WIC

専有面積

77.06㎡

バルコニー面積

12.4㎡

備考

※専有面積にトランクルーム面積0.35㎡含む
アルコーブ面積/3.51㎡

  • アルコーブ
  • 可変式間仕切り
  • ウォークインクローゼット
  • 広いバルコニー
  • 南向き
(仮称)メイキタPROJECT 間取り I-I TYPE
タイプ

I-I TYPE

間取り

3LDK+WIC

専有面積

74.62㎡

バルコニー面積

12㎡

備考

※専有面積にトランクルーム面積0.35㎡含む
アルコーブ面積/3.33㎡

  • アルコーブ
  • 可変式間仕切り
  • ウォークインクローゼット
  • 広いバルコニー
  • 南向き
(仮称)メイキタPROJECT 間取り I-Q 2 TYPE
タイプ

I-Q 2 TYPE

間取り

3LDK+3WIC+N

専有面積

73.67㎡

バルコニー面積

12.4㎡

備考

※専有面積にトランクルーム面積0.35㎡含む
アルコーブ面積/3.49㎡

  • アルコーブ
  • 可変式間仕切り
  • ウォークインクローゼット
  • 広いバルコニー
  • 東向き

このページの一番上へ