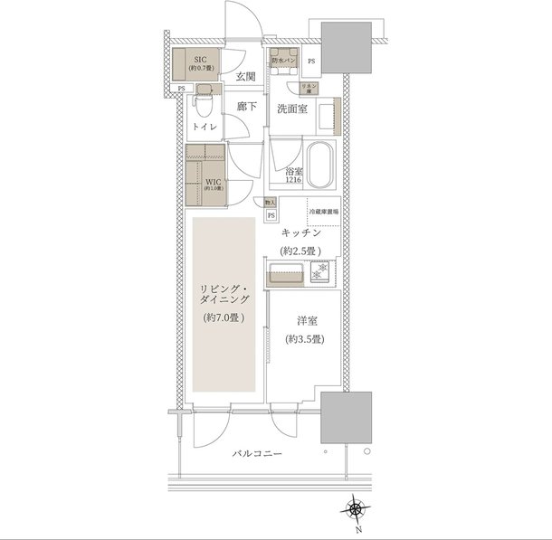
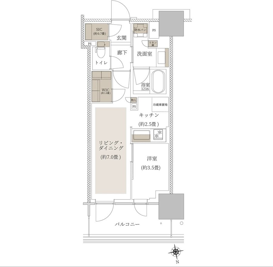
ルネタワー八王子 間取り 30A TYPE
タイプ

30A TYPE

間取り

1LDK+SIC

専有面積

30.74㎡

バルコニー面積

7.82㎡

  • 玄関からリビングが見えない間取り
  • シューズインクローゼット
  • 北向き
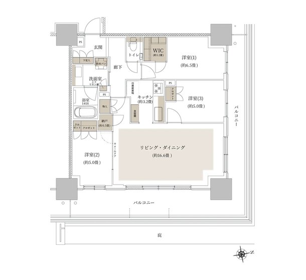
ルネタワー八王子 間取り 55A1 TYPE
タイプ

55A1 TYPE

間取り

2LDK+SIC

専有面積

53.94㎡

バルコニー面積

9.6㎡

  • 玄関からリビングが見えない間取り
  • シューズインクローゼット
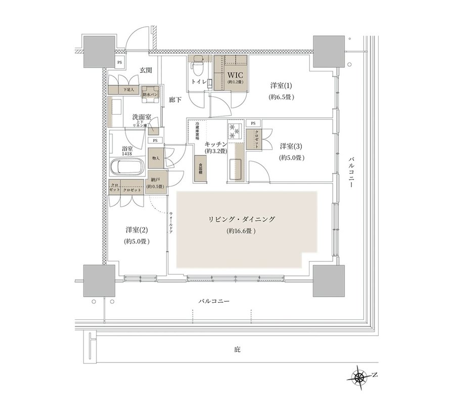
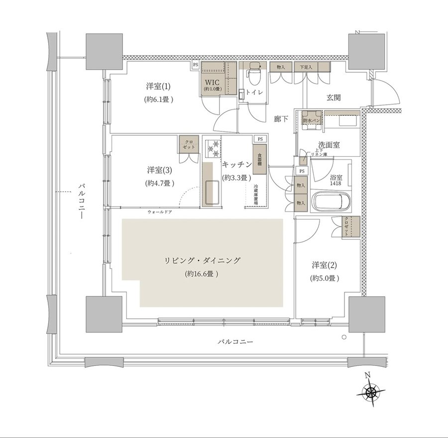
ルネタワー八王子 間取り 70A1 TYPE
タイプ

70A1 TYPE

間取り

3LDK+SIC+N

専有面積

67.53㎡

バルコニー面積

14.94㎡

  • 玄関からリビングが見えない間取り
  • 可変式間仕切り
  • シューズインクローゼット
  • 南向き
ルネタワー八王子 間取り 80A1 TYPE
タイプ

80A1 TYPE

間取り

3LDK+WIC+N

専有面積

80.54㎡

バルコニー面積

28.10㎡

  • 玄関からリビングが見えない間取り
  • 可変式間仕切り
  • ウォークインクローゼット
  • 西向き
ルネタワー八王子 間取り 55B1 TYPE
タイプ

55B1 TYPE

間取り

2LDK+WIC

専有面積

55.30㎡

バルコニー面積

12.41㎡

  • 可変式間仕切り
  • ウォークインクローゼット
  • 北向き
ルネタワー八王子 間取り 60B1 TYPE
タイプ

60B1 TYPE

間取り

2LDK

専有面積

61.23㎡

バルコニー面積

9.52㎡

  • 玄関からリビングが見えない間取り
  • 西向き
ルネタワー八王子 間取り 70B1 TYPE
タイプ

70B1 TYPE

間取り

3LDK+WIC+SIC

専有面積

67.87㎡

バルコニー面積

14.04㎡

  • 玄関からリビングが見えない間取り
  • 可変式間仕切り
  • ウォークインクローゼット
  • シューズインクローゼット
  • 南向き
ルネタワー八王子 間取り 80B1 TYPE
タイプ

80B1 TYPE

間取り

3LDK+WIC

専有面積

80.09㎡

バルコニー面積

27.98㎡

  • 玄関からリビングが見えない間取り
  • 可変式間仕切り
  • 広いリビング
  • ウォークインクローゼット
  • 2面バルコニー
  • L字バルコニー
  • 南向き
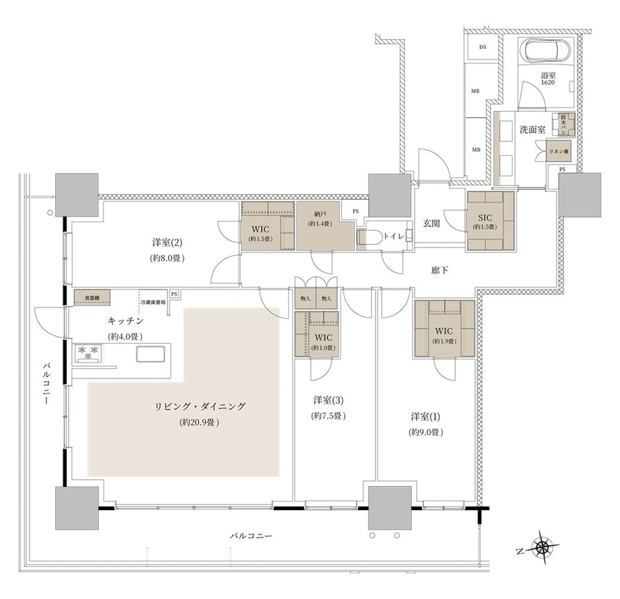
ルネタワー八王子 間取り 90B TYPE
タイプ

90B TYPE

間取り

3LDK+2WIC+SIC+N

専有面積

95.76㎡

バルコニー面積

20.71㎡

  • 玄関からリビングが見えない間取り
  • ウォークインクローゼット
  • シューズインクローゼット
  • 北向き
ルネタワー八王子 間取り 55C TYPE
タイプ

55C TYPE

間取り

2LDK+SIC

専有面積

55.18㎡

バルコニー面積

10.54㎡

  • 玄関からリビングが見えない間取り
  • シューズインクローゼット
  • 北向き
ルネタワー八王子 間取り 70C1 TYPE
タイプ

70C1 TYPE

間取り

3LDK+WIC

専有面積

67.69㎡

バルコニー面積

13.94㎡

  • 可変式間仕切り
  • ウォークインクローゼット
ルネタワー八王子 間取り 70D1 TYPE
タイプ

70D1 TYPE

間取り

3LDK+WIC+SIC+N

専有面積

67.70㎡

バルコニー面積

13.26㎡

  • 玄関からリビングが見えない間取り
  • 可変式間仕切り
  • ウォークインクローゼット
  • シューズインクローゼット
  • 北向き
ルネタワー八王子 間取り 70E1 TYPE
タイプ

70E1 TYPE

間取り

3LDK+SIC+N

専有面積

70.59㎡

バルコニー面積

14.11㎡

  • 玄関からリビングが見えない間取り
  • 可変式間仕切り
  • シューズインクローゼット
  • 南向き
ルネタワー八王子 間取り 70F1 TYPE
タイプ

70F1 TYPE

間取り

3LDK+WIC+SIC

専有面積

70.20㎡

バルコニー面積

13.26㎡

  • 玄関からリビングが見えない間取り
  • 可変式間仕切り
  • ウォークインクローゼット
  • シューズインクローゼット
  • 南向き

このページの一番上へ