- 価格
-
3100万円台~2億3000万円台(100万円単位)(予定)
月々の支払い額を見る
- 専有面積
-
30.68㎡~127.15㎡
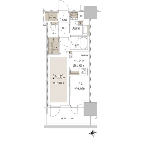
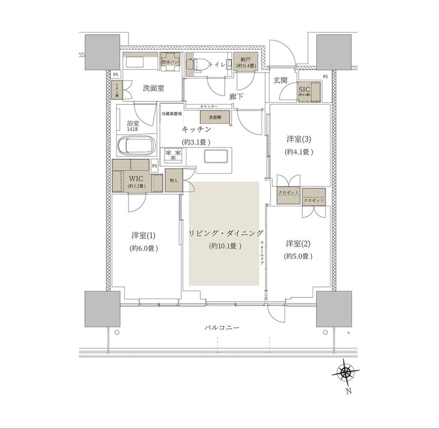
- 間取り
-
1DK〜4LDK
間取りを見る(11件)
- 販売スケジュール
-
2025年12月中旬販売開始予定

