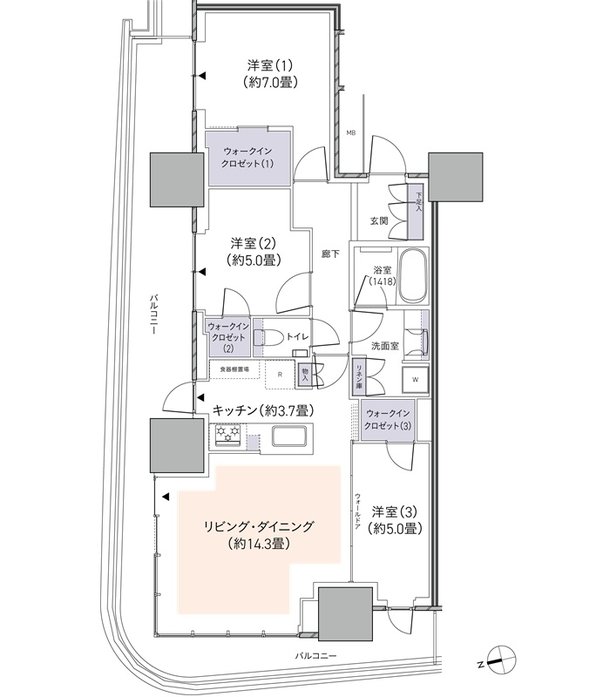
パークタワー柏の葉キャンパス 間取り P-S100Ltタイプ
タイプ

P-S100Ltタイプ

間取り

3LDK+3WIC+SIC+2N

専有面積

100.99㎡

バルコニー面積

17.42㎡

備考

トランクルーム面積:1.24㎡

  • 広いリビング
  • ウォークインクローゼット
  • シューズインクローゼット
  • トランクルーム
  • 南向き
パークタワー柏の葉キャンパス 間取り P-S101Otタイプ
タイプ

P-S101Otタイプ

間取り

3LDK+3WIC+SIC+N

専有面積

101.63㎡

バルコニー面積

16.42㎡

備考

トランクルーム面積:1.24㎡

  • 広いリビング
  • ウォークインクローゼット
  • シューズインクローゼット
  • トランクルーム
  • 南向き
パークタワー柏の葉キャンパス 間取り P-S102Ptタイプ
タイプ

P-S102Ptタイプ

間取り

3LDK+WIC+SIC+N

専有面積

102.57㎡

バルコニー面積

15.41㎡

備考

トランクルーム面積:1.24㎡

  • 玄関からリビングが見えない間取り
  • 広いリビング
  • ウォークインクローゼット
  • シューズインクローゼット
  • トランクルーム
  • 南向き
パークタワー柏の葉キャンパス 間取り P-S105Rtタイプ
タイプ

P-S105Rtタイプ

間取り

3LDK+2WIC+SIC+N

専有面積

105.22㎡

バルコニー面積

26.78㎡

備考

トランクルーム面積:1.24㎡

  • 玄関からリビングが見えない間取り
  • ウォークインクローゼット
  • シューズインクローゼット
  • 出入口が2か所以上あるキッチン
  • 2面バルコニー
  • 南向き
パークタワー柏の葉キャンパス 間取り P-S114Stタイプ
タイプ

P-S114Stタイプ

間取り

3LDK+4WIC+SIC+N

専有面積

114.73㎡

バルコニー面積

19.74㎡

備考

トランクルーム面積:1.24㎡

  • 広いリビング
  • ウォークインクローゼット
  • シューズインクローゼット
  • 出入口が2か所以上あるキッチン
  • 2面バルコニー
  • トランクルーム
  • 南向き
パークタワー柏の葉キャンパス 間取り S93Btタイプ
タイプ

S93Btタイプ

間取り

4LDK+WIC+SIC

専有面積

93.06㎡

バルコニー面積

16.5㎡

備考

トランクルーム面積(28〜40F):0.84㎡

  • 玄関からリビングが見えない間取り
  • 広いリビング
  • ウォークインクローゼット
  • シューズインクローゼット
  • 出入口が2か所以上あるキッチン
  • 2面バルコニー
  • 南向き
パークタワー柏の葉キャンパス 間取り W80Iタイプ
タイプ

W80Iタイプ

間取り

3LDK+3WIC

専有面積

80.75㎡

バルコニー面積

30.77㎡

  • 玄関からリビングが見えない間取り
  • 可変式間仕切り
  • ウォークインクローゼット
  • 2面バルコニー
  • 西向き
パークタワー柏の葉キャンパス 間取り S76Ftタイプ
タイプ

S76Ftタイプ

間取り

3LDK+WIC+N

専有面積

76.09㎡

バルコニー面積

11.65㎡

備考

トランクルーム面積(28〜40F):0.84㎡

  • 可変式間仕切り
  • ウォークインクローゼット
  • トランクルーム
  • 南向き
パークタワー柏の葉キャンパス 間取り W72Eタイプ
タイプ

W72Eタイプ

間取り

3LDK+WIC+SIC

専有面積

72.85㎡

バルコニー面積

11.32㎡

  • 可変式間仕切り
  • ウォークインクローゼット
  • シューズインクローゼット
  • 西向き
パークタワー柏の葉キャンパス 間取り S70Btタイプ
タイプ

S70Btタイプ

間取り

3LDK+2WIC+N

専有面積

70.62㎡

バルコニー面積

10.43㎡

備考

トランクルーム面積(28〜40F):0.84㎡

  • 可変式間仕切り
  • ウォークインクローゼット
  • トランクルーム
  • 南向き
パークタワー柏の葉キャンパス 間取り S60Ctタイプ
タイプ

S60Ctタイプ

間取り

2LDK+WIC+N

専有面積

60.12㎡

バルコニー面積

8.21㎡

備考

トランクルーム面積(28〜40F):0.84㎡

  • 可変式間仕切り
  • ウォークインクローゼット
  • 南向き

このページの一番上へ