グリーンヒル南大分グランレガートの間取り一覧

お気に入りに
追加する
お気に入りに
追加済み

2LDK掲載2

3LDK掲載6

4LDK掲載1

※掲載の間取り図は現在計画中のもので、監督官公庁等の指導・施工上の都合及び改良等の理由により変更が生じる場合があります。あらかじめご了承ください。

グリーンヒル南大分グランレガート 間取り B1 type
タイプ

B1 type

間取り

2LDK(1階)

専有面積

58.53㎡

バルコニー面積

-

備考

専用庭面積:20.13㎡
テラス面積:10.89㎡

  • ウォークインクローゼット
  • スロップシンク
  • テラス
  • 専用庭
  • 南東向き
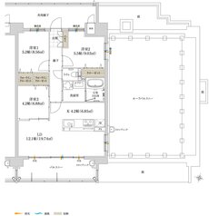
グリーンヒル南大分グランレガート 間取り B type
タイプ

B type

間取り

2LDK(2~7階)

専有面積

58.38㎡

バルコニー面積

10.89㎡

  • 玄関からリビングが見えない間取り
  • ウォークインクローゼット
  • スロップシンク
  • 南東向き
グリーンヒル南大分グランレガート 間取り C1 type
タイプ

C1 type

間取り

3LDK(1階)

専有面積

69.32㎡

バルコニー面積

-

備考

専用庭面積:35.80㎡
テラス面積:11.34㎡

  • 可変式間仕切り
  • ウォークインクローゼット
  • スロップシンク
  • テラス
  • 専用庭
  • 南東向き
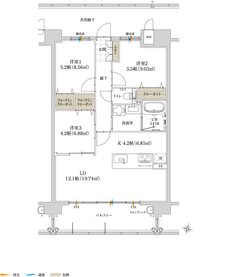
グリーンヒル南大分グランレガート 間取り C2 type
タイプ

C2 type

間取り

3LDK(6階)

専有面積

69.32㎡

バルコニー面積

11.34㎡

備考

ルーフバルコニー面積54.56㎡

  • 可変式間仕切り
  • ウォークインクローゼット
  • ルーフバルコニー
  • スロップシンク
  • 南東向き
グリーンヒル南大分グランレガート 間取り C3 type
タイプ

C3 type

間取り

3LDK(7階)

専有面積

69.32㎡

バルコニー面積

11.34㎡

  • 可変式間仕切り
  • ウォークインクローゼット
  • スロップシンク
  • 南東向き
グリーンヒル南大分グランレガート 間取り C type
タイプ

C type

間取り

3LDK(2~5階)

専有面積

69.32㎡

バルコニー面積

11.34㎡

  • 可変式間仕切り
  • ウォークインクローゼット
  • スロップシンク
  • 南東向き
グリーンヒル南大分グランレガート 間取り D1 type
タイプ

D1 type

間取り

3LDK(1階)

専有面積

71.41㎡

バルコニー面積

-

備考

専用庭面積:29.08㎡
テラス面積:13.14㎡

  • ウォークインクローゼット
  • 出入口が2か所以上あるキッチン
  • スロップシンク
  • テラス
  • 専用庭
  • 南東向き
グリーンヒル南大分グランレガート 間取り D type
タイプ

D type

間取り

3LDK(2~5階)

専有面積

71.41㎡

バルコニー面積

13.14㎡

  • ウォークインクローゼット
  • 出入口が2か所以上あるキッチン
  • スロップシンク
  • 南東向き
グリーンヒル南大分グランレガート 間取り A type
タイプ

A type

間取り

4LDK(2~7階)

専有面積

80.56㎡

バルコニー面積

17.34㎡

  • 可変式間仕切り
  • ウォークインクローゼット
  • 浴室に窓
  • スロップシンク
  • 南東向き

このページの一番上へ