- 価格
-
3550万円~5560万円
月々の支払い額を見る
- 専有面積
-
58.38㎡~80.56㎡
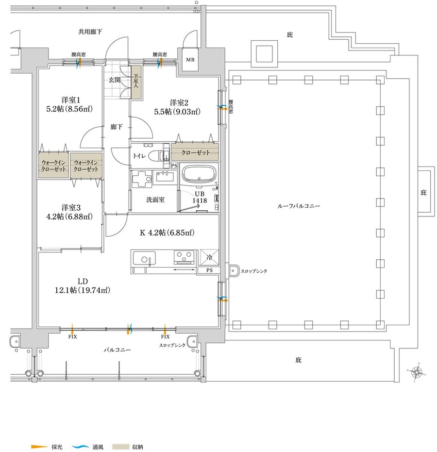
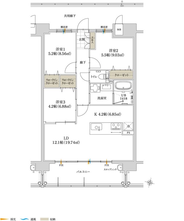
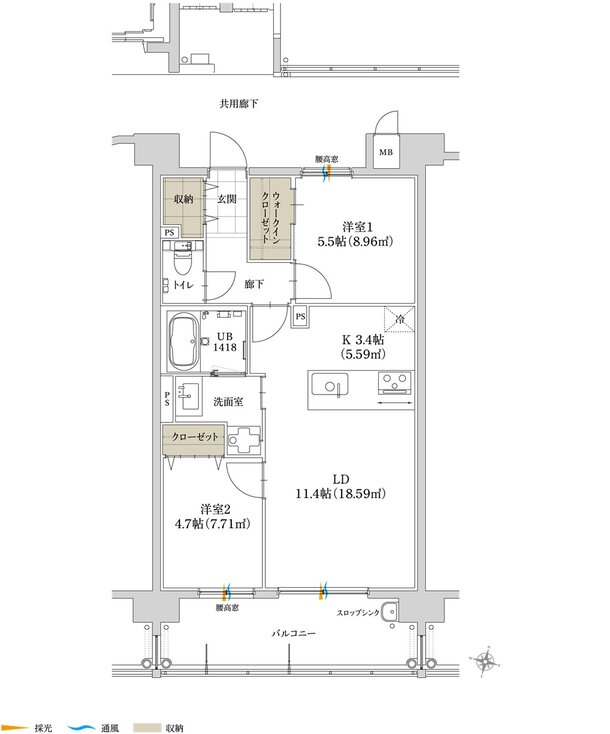
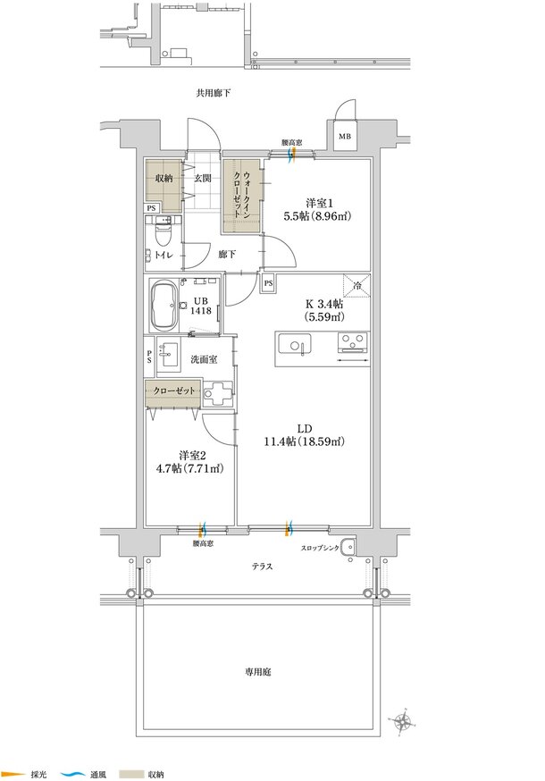
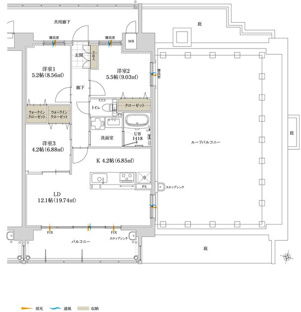
- 間取り
-
2LDK、3LDK、4LDK
間取りを見る(9件)
- 販売スケジュール
-
先着順申込み受付中

