- 価格
-
2800万円台~1億8900万円台(100万円単位)(予定)
月々の支払い額を見る
- 専有面積
-
35.11㎡~137.85㎡
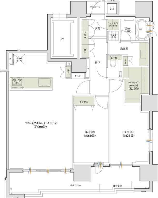
- 間取り
-
1LDK・2LDK
間取りを見る(2件)
- 販売スケジュール
-
2026年5月下旬 第2期3次以降販売開始予定

