- 価格
-
価格未定(予定)
- 専有面積
-
42.08㎡~149.10㎡
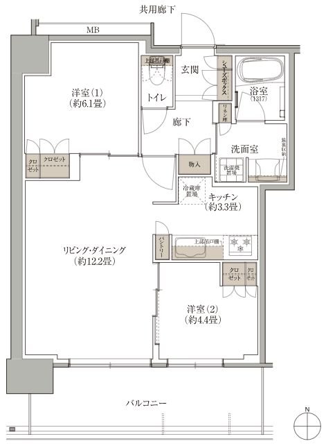
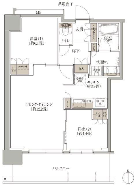
- 間取り
-
1LDK~4LDK
間取りを見る(7件)
- 販売スケジュール
-
2026年3月下旬以降販売開始予定

