- 価格
-
5630万円~4億2360万円
月々の支払い額を見る
- 専有面積
-
42.08㎡~164.30㎡
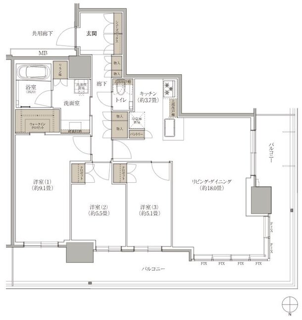
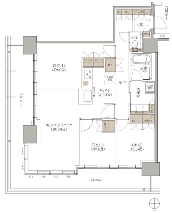
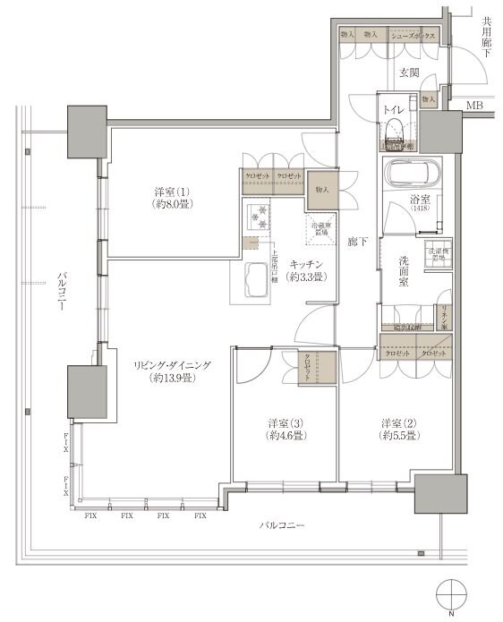
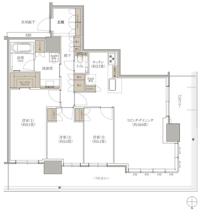
- 間取り
-
1LDK~4LDK
間取りを見る(5件)
- 販売スケジュール
-
2025年11月15日~第1期登録受付開始 登録受付期間:2025年11月15日(土)~2025年11月21日(金)12:00 抽選日:2025年11月21日(金)15:00

