ブランズタワー横浜北仲の間取り一覧

お気に入りに
追加する
お気に入りに
追加済み

2LDK掲載3

3LDK掲載3

SIC:シューズインクロークTR:トランクルーム
※掲載の間取り図は計画段階のもので、今後変更になる場合がございます。

ブランズタワー横浜北仲 間取り S55A type
タイプ

S55A type

間取り

2LDK+TR

専有面積

55.08㎡

バルコニー面積

10.23㎡

備考

※専有面積に、トランクルーム面積:1.13㎡を含む

  • 玄関からリビングが見えない間取り
  • トランクルーム
  • 南東向き
ブランズタワー横浜北仲 間取り S55B type
タイプ

S55B type

間取り

2LDK+SIC+TR

専有面積

55.22㎡

バルコニー面積

10.92㎡

備考

※専有面積に、トランクルーム面積:1.31㎡を含む

  • 玄関からリビングが見えない間取り
  • シューズインクローゼット
  • トランクルーム
  • 南東向き
ブランズタワー横浜北仲 間取り S70C type
タイプ

S70C type

間取り

2LDK+WIC+S+TR

専有面積

72.23㎡

バルコニー面積

11.41㎡

備考

※専有面積に、トランクルーム面積:1.32㎡を含む

  • 玄関からリビングが見えない間取り
  • 広いリビング
  • ウォークインクローゼット
  • 出入口が2か所以上あるキッチン
  • トランクルーム
  • 南西向き
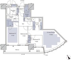
ブランズタワー横浜北仲 間取り S65A type
タイプ

S65A type

間取り

3LDK+SIC+TR

専有面積

67.99㎡

バルコニー面積

10.57㎡

備考

※専有面積に、トランクルーム面積:1.56㎡を含む
サービスバルコニー面積:2.75㎡

  • 玄関からリビングが見えない間取り
  • シューズインクローゼット
  • トランクルーム
  • 南西向き
ブランズタワー横浜北仲 間取り S80A type
タイプ

S80A type

間取り

3LDK+WIC+SIC+S+TR

専有面積

80.59㎡

バルコニー面積

9.97㎡

備考

※専有面積に、トランクルーム面積:0.59㎡を含む
サービスバルコニー面積:3.67㎡

  • 玄関からリビングが見えない間取り
  • ウォークインクローゼット
  • シューズインクローゼット
  • トランクルーム
  • 南西向き
ブランズタワー横浜北仲 間取り S80C type
タイプ

S80C type

間取り

3LDK+WIC+SIC+TR

専有面積

83.11㎡

バルコニー面積

7.13㎡

備考

※専有面積に、トランクルーム面積:1.00㎡を含む
サービスバルコニー面積:3.67㎡

  • 可変式間仕切り
  • 広いリビング
  • ウォークインクローゼット
  • シューズインクローゼット
  • トランクルーム
  • 南東向き

このページの一番上へ