- 価格
-
6488万円~8588万円
月々の支払い額を見る
- 専有面積
-
54.92㎡~64.18㎡
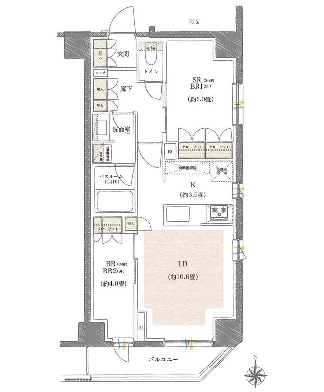
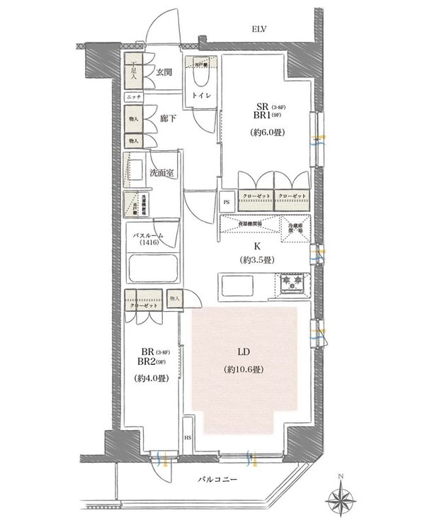
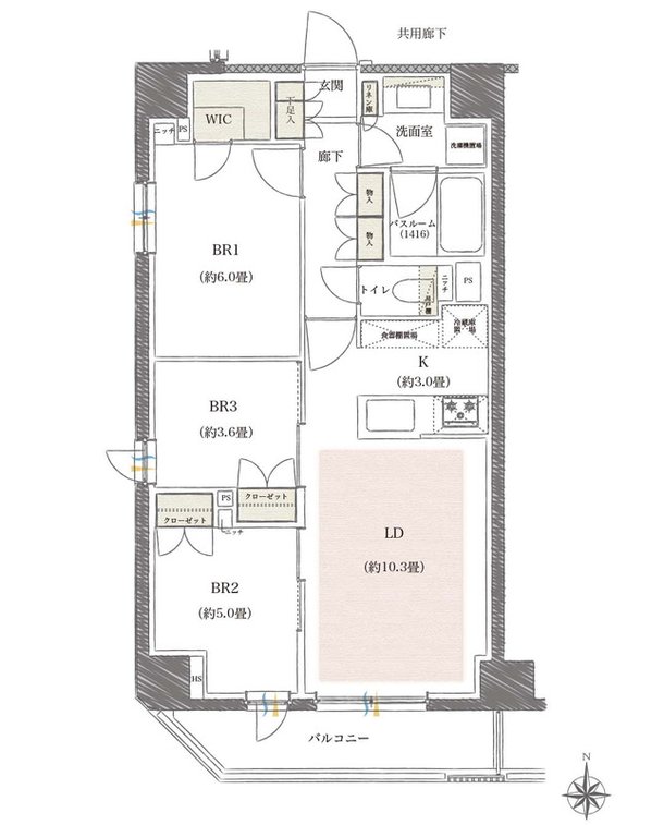
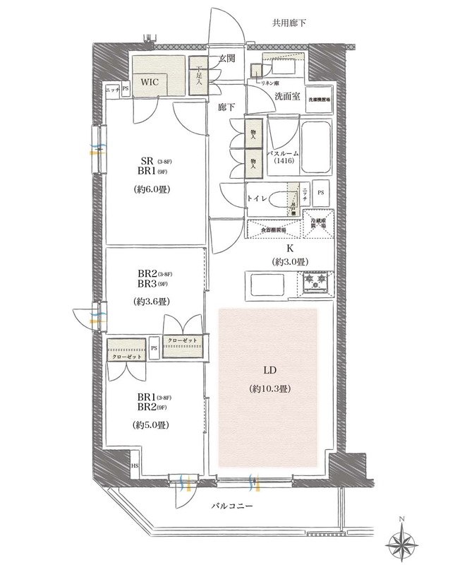
- 間取り
-
1LDK+SR(納戸) ~2LDK+SR(納戸)
間取りを見る(3件)
- 販売スケジュール
-
先着順申込受付中

