- 価格
-
4158万円~6698万円
月々の支払い額を見る
- 専有面積
-
64.45㎡~92.67㎡
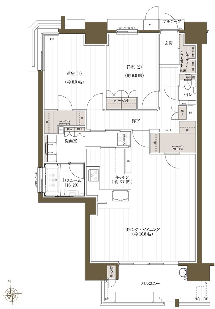
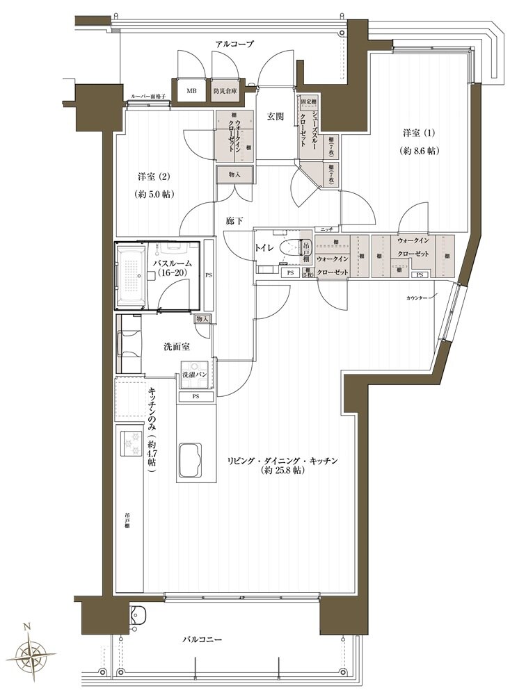
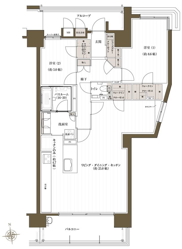
- 間取り
-
2LDK・3LDK
間取りを見る(12件)
- 販売スケジュール
-
先着順申込受付中 申込受付時間:10:00〜18:00 申込受付場所:「J.CREST 番町ミッドハウス」マンションギャラリー

