プラウド京都四条堀川の間取り一覧

お気に入りに
追加する
お気に入りに
追加済み

〜1LDK(1R・1K・1DK含む)掲載2

2LDK掲載2

3LDK掲載2

WIC:ウォークインクローゼット
SIC:シューズインクローク
N:納戸

※掲載の間取りは計画段階のもので今後変更される場合がございます。
※掲載の情報は2025年5月時点のもので、今後変更になる場合があります。

プラウド京都四条堀川 間取り A type
タイプ

A type

間取り

1LDK+N+パントリー

専有面積

47.82㎡

バルコニー面積

-

  • アルコーブ
  • 玄関からリビングが見えない間取り
  • 可変式間仕切り
  • 浴室に窓
  • 西向き
プラウド京都四条堀川 間取り B type【MENU2】
タイプ

B type【MENU2】

間取り

1LDK+N+WIC

専有面積

55.57㎡

バルコニー面積

-

  • 可変式間仕切り
  • ウォークインクローゼット
  • 西向き
プラウド京都四条堀川 間取り G type
タイプ

G type

間取り

2LDK+3N+WIC+SIC

専有面積

113.6㎡

バルコニー面積

-

  • アルコーブ
  • ウォークインクローゼット
  • シューズインクローゼット
  • 浴室に窓
  • 東向き
プラウド京都四条堀川 間取り H type
タイプ

H type

間取り

2LDK+N+WIC+SIC

専有面積

105.80㎡

バルコニー面積

-

  • ウォークインクローゼット
  • シューズインクローゼット
  • 東向き
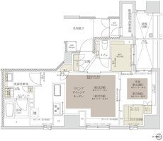
プラウド京都四条堀川 間取り C type
タイプ

C type

間取り

3LDK+N+WIC+SIC

専有面積

68.55㎡

バルコニー面積

-

  • 可変式間仕切り
  • ウォークインクローゼット
  • シューズインクローゼット
  • 東向き
プラウド京都四条堀川 間取り E type
タイプ

E type

間取り

3LDK+N+WIC

専有面積

84.38㎡

バルコニー面積

-

  • アルコーブ
  • 可変式間仕切り
  • ウォークインクローゼット
  • 東向き

このページの一番上へ