プラウド京都二条城 間取り C type
タイプ

C type

間取り

2LDK+N+SIC+パントリー

専有面積

90.67㎡

バルコニー面積

-

備考

バルコニー面積(3階)7.41㎡/(2階)7.47㎡

  • 玄関からリビングが見えない間取り
  • 広いリビング
  • 南向き
プラウド京都二条城 間取り E type
タイプ

E type

間取り

1LDK+SIC

専有面積

56.87㎡

バルコニー面積

-

備考

バルコニー面積:6.14㎡(3階)
バルコニー面積:6.19㎡(2階)

  • 南向き
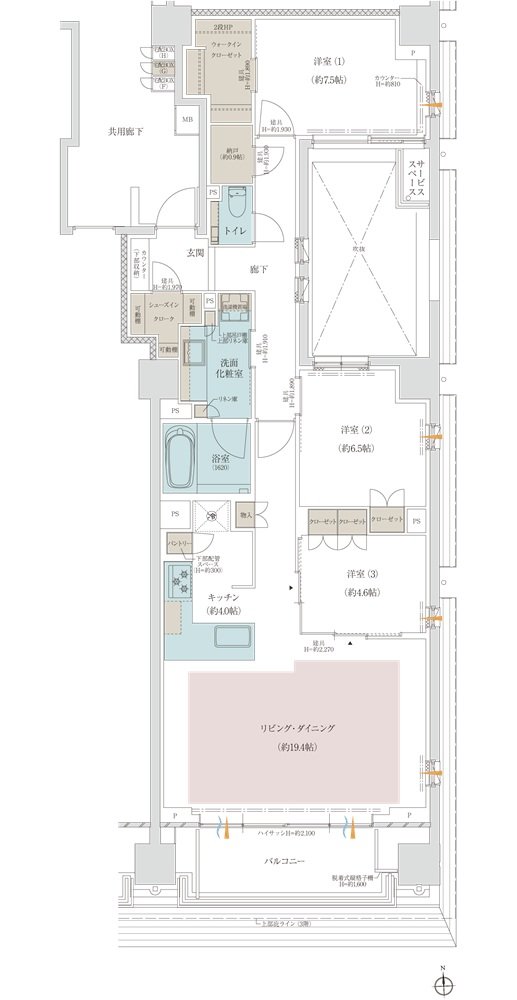
プラウド京都二条城 間取り F type[2・3F]
タイプ

F type[2・3F]

間取り

3LDK+N+WIC+SIC

専有面積

90.66㎡

バルコニー面積

-

備考

バルコニー面積:7.53㎡(3階)
バルコニー面積:7.59㎡(2階)

  • 玄関からリビングが見えない間取り
  • 可変式間仕切り
  • ウォークインクローゼット
  • シューズインクローゼット
  • 出入口が2か所以上あるキッチン
  • 南向き
  • 吹き抜け
プラウド京都二条城 間取り E1 type
タイプ

E1 type

間取り

1LDK+SIC

専有面積

60.91㎡

バルコニー面積

7.50㎡

  • 広いリビング
  • 南向き
プラウド京都二条城 間取り F1 type
タイプ

F1 type

間取り

3LDK+N+WIC+SIC

専有面積

96.49㎡

バルコニー面積

12.10㎡

  • 玄関からリビングが見えない間取り
  • 可変式間仕切り
  • 広いリビング
  • ウォークインクローゼット
  • 専用庭
  • 南向き
プラウド京都二条城 間取り G1 type
タイプ

G1 type

間取り

3LDK+N+WIC+SIC

専有面積

108.01㎡

バルコニー面積

10.82㎡

備考

テラス面積:15.00㎡

  • 玄関からリビングが見えない間取り
  • 可変式間仕切り
  • ウォークインクローゼット
  • シューズインクローゼット
  • テラス
  • 南向き
プラウド京都二条城 間取り B type[4F]
タイプ

B type[4F]

間取り

3LDK+N+3WIC+SIC

専有面積

110.74㎡

バルコニー面積

7.46㎡

  • 玄関からリビングが見えない間取り
  • 広いリビング
  • ウォークインクローゼット
  • シューズインクローゼット
  • 南向き
プラウド京都二条城 間取り G type
タイプ

G type

間取り

3LDK+N+WIC+SIC

専有面積

101.52㎡

バルコニー面積

-

備考

バルコニー面積(3階):7.40㎡
バルコニー面積(2階):7.47㎡

  • 玄関からリビングが見えない間取り
  • 広いリビング
  • ウォークインクローゼット
  • シューズインクローゼット
  • 南向き
  • 吹き抜け

このページの一番上へ