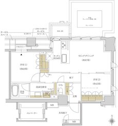
間取り
この物件の詳細情報に戻るWIC:ウォークインクローゼット
SIC:シューズインクローゼット
N:納戸
※掲載の間取りは計画段階のもので今後変更になる場合がございます。
関連する他の物件も見てみる
特徴
- 対面キッチン(31)
- 一人暮らし・二人暮らし向け(31)
- 子どもと暮らす(30)
- I型キッチン(30)
- ウォークインクローゼット(27)
- 複数沿線利用可能(24)
- 可変式間仕切り(23)
- シューズインクローゼット(20)
- 宅配ボックス(20)
- ZEHマンション(20)
- 平置き駐車場(19)
- 玄関からリビングが見えない間取り(19)
- 南向き(18)
- 駅近(駅徒歩5分以内・駅直結)(16)
- 高級マンション・ハイグレードマンション(12)
- 防災設備(11)
- 内廊下(10)
- ラウンジ(9)
- 出入口が2か所以上あるキッチン(7)
- 二重床/二重天井(6)
- ディスポーザー(5)
- 北向き(5)
- アイランドキッチン(4)
- 天井高(2.6m以上)(2)
- ハイサッシ(2)
地域
間取り
価格帯
不動産会社
駅
沿線

