- 価格
-
1億3800万円、1億9800万円
月々の支払い額を見る
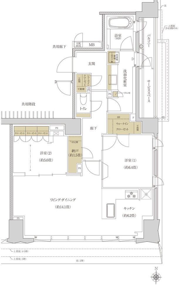
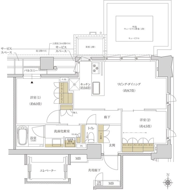
- 専有面積
-
60.20㎡、83.97㎡
- 間取り
-
2LDK
間取りを見る(2件)
- 販売スケジュール
-
先着順販売中

