- 価格
-
4488万円~7468万円
月々の支払い額を見る
- 専有面積
-
57.40㎡~86.98㎡
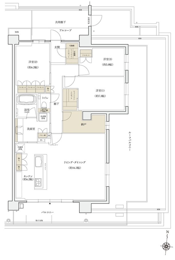
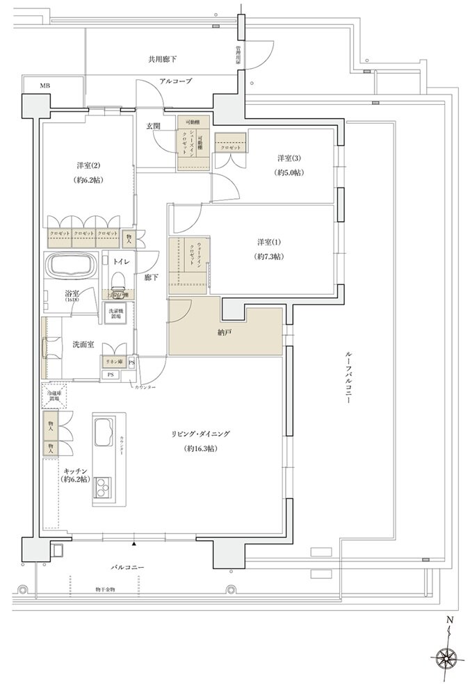
- 間取り
-
1LDK+S~3LDK+S
間取りを見る(8件)
- 販売スケジュール
-
先着順申込受付中

