シエリア大阪谷町 間取り A TYPE
タイプ

A TYPE

間取り

3LDK+WIC

専有面積

80.3㎡

バルコニー面積

7.89㎡

備考

サービスバルコニー面積:4.46㎡
アルコーブ面積:2.52㎡

  • アルコーブ
  • 玄関からリビングが見えない間取り
  • 広いリビング
  • ウォークインクローゼット
  • 2面バルコニー
  • 南向き
シエリア大阪谷町 間取り E TYPE
タイプ

E TYPE

間取り

3LDK+WIC

専有面積

78.91㎡

バルコニー面積

8.56㎡

備考

サービスバルコニー面積:2.41㎡
アルコーブ面積:3.53㎡

  • アルコーブ
  • ウォークインクローゼット
  • 出入口が2か所以上あるキッチン
  • 2面バルコニー
  • 南向き
シエリア大阪谷町 間取り Fr TYPE
タイプ

Fr TYPE

間取り

3LDK+N+3WIC+SIC

専有面積

130.95㎡

バルコニー面積

9.49㎡

備考

サービスバルコニー面積:4.46㎡
アルコーブ面積:9.14㎡
トランクルーム面積:1.40㎡
ルーフバルコニー面積:54.01㎡

  • アルコーブ
  • 玄関からリビングが見えない間取り
  • 広いリビング
  • ウォークインクローゼット
  • シューズインクローゼット
  • 出入口が2か所以上あるキッチン
  • 2面バルコニー
  • ルーフバルコニー
  • トランクルーム
  • 南向き
シエリア大阪谷町 間取り D TYPE
タイプ

D TYPE

間取り

1LDK+S+WIC+SIC

専有面積

55.36㎡

バルコニー面積

7.05㎡

備考

アルコーブ面積:1.90㎡

  • アルコーブ
  • ウォークインクローゼット
  • シューズインクローゼット
  • 南向き
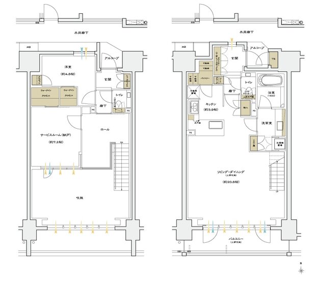
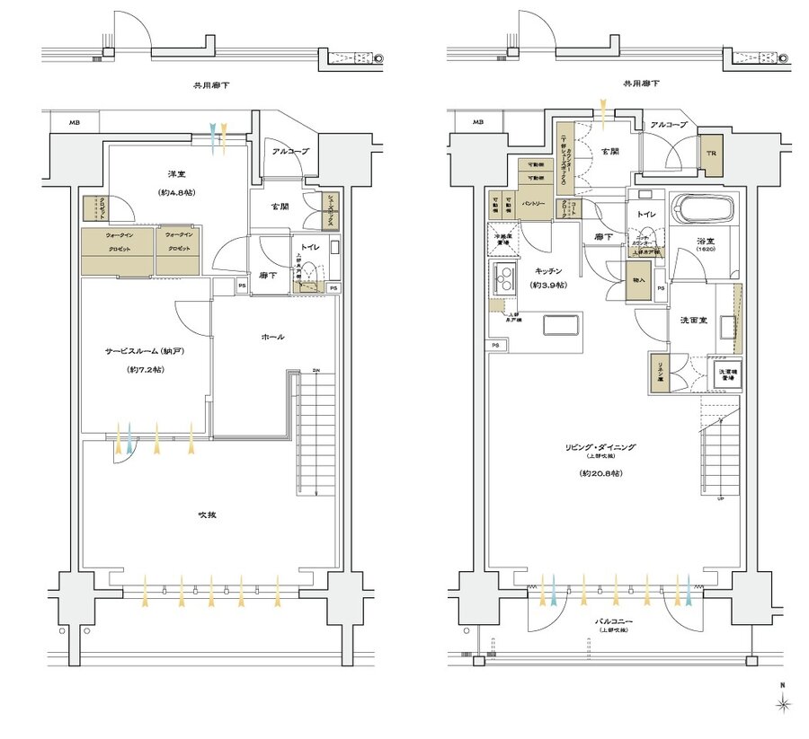
シエリア大阪谷町 間取り G TYPE
タイプ

G TYPE

間取り

1LDK+S+2WIC

専有面積

105.52㎡

バルコニー面積

9.68㎡

備考

専有面積:63.36㎡(下階)、42.16㎡(上階)
トランクルーム面積:0.69㎡
アルコーブ面積:2.11㎡(下階)、4.60㎡(上階)

  • アルコーブ
  • 広いリビング
  • ウォークインクローゼット
  • 南向き
  • 吹き抜け

このページの一番上へ