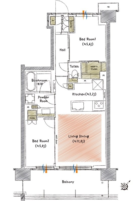
プレシス海老名グランサウス 間取り B1タイプ
タイプ

B1タイプ

間取り

4LDK+2WIC+SIC

専有面積

75.48㎡

バルコニー面積

18.1㎡

備考

サービスバルコニー1面積:5.25㎡
サービスバルコニー2面積:3.69㎡

  • 可変式間仕切り
  • ウォークインクローゼット
  • シューズインクローゼット
  • 3面バルコニー
  • L字バルコニー
  • 南東向き
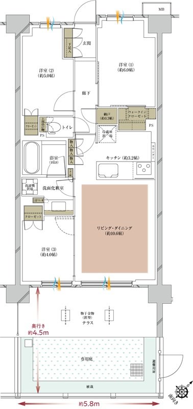
プレシス海老名グランサウス 間取り B2gタイプ
タイプ

B2gタイプ

間取り

3LDK+2WIC+N

専有面積

65.58㎡

バルコニー面積

-

備考

テラス面積:12.00㎡
専用庭面積:15.00㎡

  • 可変式間仕切り
  • ウォークインクローゼット
  • テラス
  • 専用庭
  • 南東向き
プレシス海老名グランサウス 間取り B3タイプ
タイプ

B3タイプ

間取り

3LDK+2WIC+N

専有面積

65.58㎡

バルコニー面積

12㎡

  • 可変式間仕切り
  • ウォークインクローゼット
  • 南東向き
プレシス海老名グランサウス 間取り B5タイプ
タイプ

B5タイプ

間取り

2LDK+WIC

専有面積

57.73㎡

バルコニー面積

12㎡

  • 可変式間仕切り
  • ウォークインクローゼット
  • 南東向き
プレシス海老名グランサウス 間取り B8rタイプ
タイプ

B8rタイプ

間取り

4LDK+2WIC

専有面積

80.09㎡

バルコニー面積

15.87㎡

備考

ルーフバルコニー面積:25.41㎡

  • 可変式間仕切り
  • ウォークインクローゼット
  • 出入口が2か所以上あるキッチン
  • 2面バルコニー
  • L字バルコニー
  • ルーフバルコニー
  • 南東向き
プレシス海老名グランサウス 間取り C5gタイプ
タイプ

C5gタイプ

間取り

3LDK+WIC+N

専有面積

63.94㎡

バルコニー面積

-

備考

テラス面積:11.70㎡
専用庭面積:14.62㎡

  • 可変式間仕切り
  • ウォークインクローゼット
  • テラス
  • 専用庭
  • 南東向き
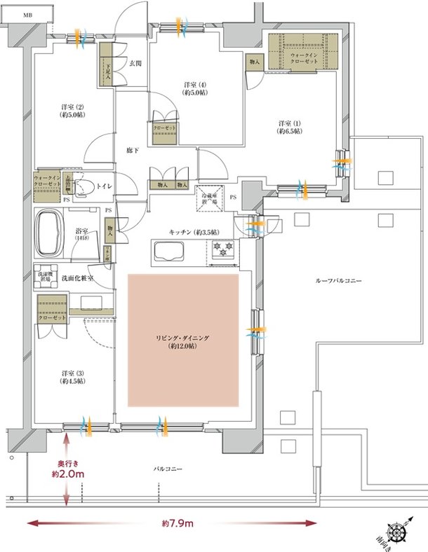
プレシス海老名グランサウス 間取り C9rタイプ
タイプ

C9rタイプ

間取り

3LDK+2WIC+N

専有面積

67.58㎡

バルコニー面積

15.2㎡

備考

ルーフバルコニー面積:38.01㎡

  • 可変式間仕切り
  • ウォークインクローゼット
  • 出入口が2か所以上あるキッチン
  • 2面バルコニー
  • ルーフバルコニー
  • 南東向き
プレシス海老名グランサウス 間取り C10タイプ
タイプ

C10タイプ

間取り

3LDK+2WIC+N

専有面積

71.38㎡

バルコニー面積

13㎡

  • 可変式間仕切り
  • ウォークインクローゼット
  • 南東向き

このページの一番上へ