レクシア柳丸ガーデンフォートの間取り一覧

お気に入りに
追加する
お気に入りに
追加済み

3LDK掲載3

4LDK掲載1

WIC:ウォークインクロゼット

※掲載の間取図は計画段階の図面を基に描き起こしたものであり、今後変更になる可能性があります。

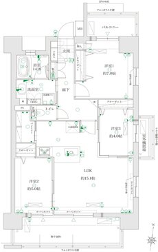
レクシア柳丸ガーデンフォート 間取り C type
タイプ

C type

間取り

3LDK+PANTRY

専有面積

68.04㎡

バルコニー面積

11.97㎡

価格

2898万円

備考

【1】洋室3を開放すれば19帖超の広々空間に
【2】センターオープンサッシ採用
【3】リビングには2カ所の物入れを設置

  • 南向き
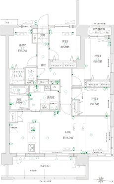
レクシア柳丸ガーデンフォート 間取り G type
タイプ

G type

間取り

3LDK+PANTRY

専有面積

73.94㎡

バルコニー面積

16.03㎡

価格

3498万円

備考

室外機置場面積:2.25㎡
【1】換気できる浴室窓
【2】食品ストックが豊富に収納できる大容量のパントリー採用
【3】2面採光のバルコニー付き洋室1
【4】洋室3を開放すれば19帖超の広々空間に
【5】2面採光の明るいリビング

  • 玄関からリビングが見えない間取り
  • 浴室に窓
  • 南向き
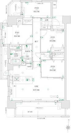
レクシア柳丸ガーデンフォート 間取り D type
タイプ

D type

間取り

3LDK+WIC+SIC

専有面積

66.38㎡

バルコニー面積

11.97㎡

価格

3098万円

  • 可変式間仕切り
  • ウォークインクローゼット
  • シューズインクローゼット
  • 浴室に窓
  • 南向き
レクシア柳丸ガーデンフォート 間取り A type
タイプ

A type

間取り

4LDK+PANTRY

専有面積

85.20㎡

バルコニー面積

19.02㎡

価格

3898万円

備考

【1】2面採光の明るい洋室
【2】パントリー・勝手口付きのキッチンは快適な調理空間
【3】洋室4を開放すれば21帖超の広々リビング空間に
【4】センターオープンサッシ採用

  • 玄関からリビングが見えない間取り
  • 出入口が2か所以上あるキッチン
  • 浴室に窓
  • 2面バルコニー
  • 南向き

このページの一番上へ