- 価格
-
7880万円~1億1880万円
月々の支払い額を見る
- 専有面積
-
81.43㎡~92.30㎡
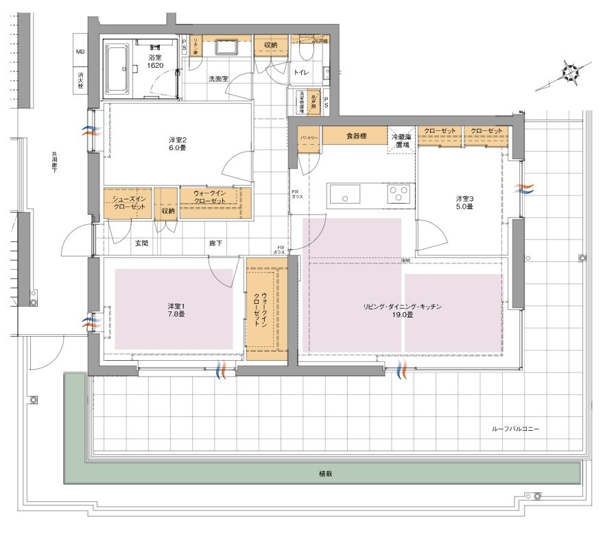
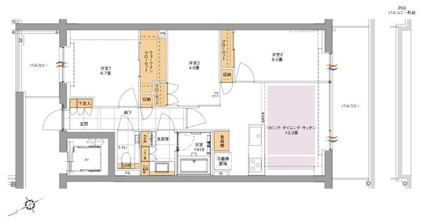
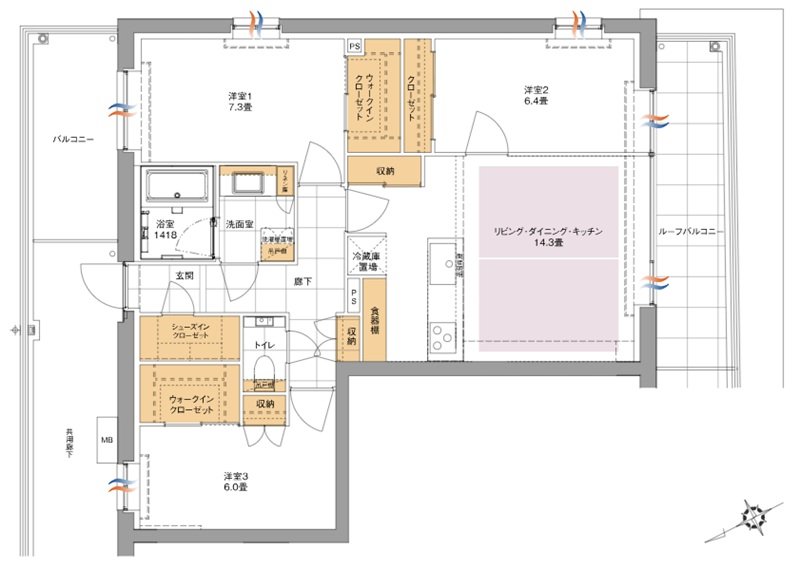
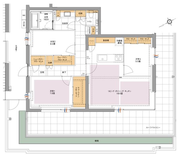
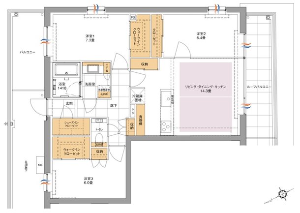
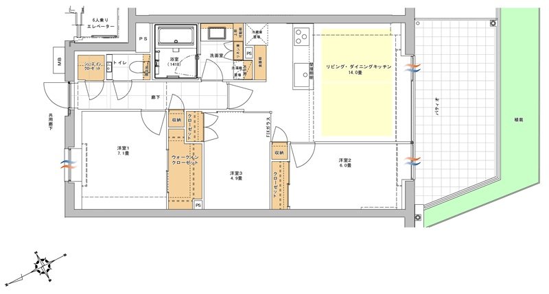
- 間取り
-
3LDK
間取りを見る(2件)
- 販売スケジュール
-
先着順申込受付中

