- 価格
-
9880万円、1億1880万円
月々の支払い額を見る
- 専有面積
-
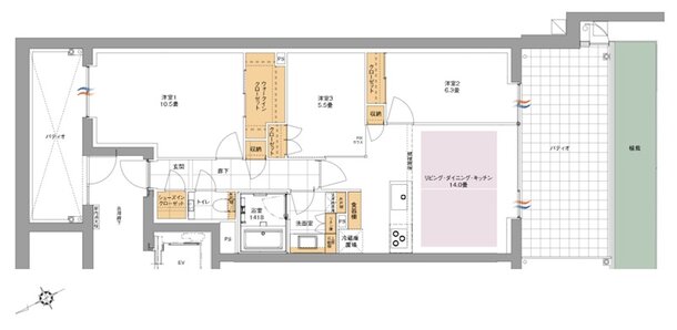
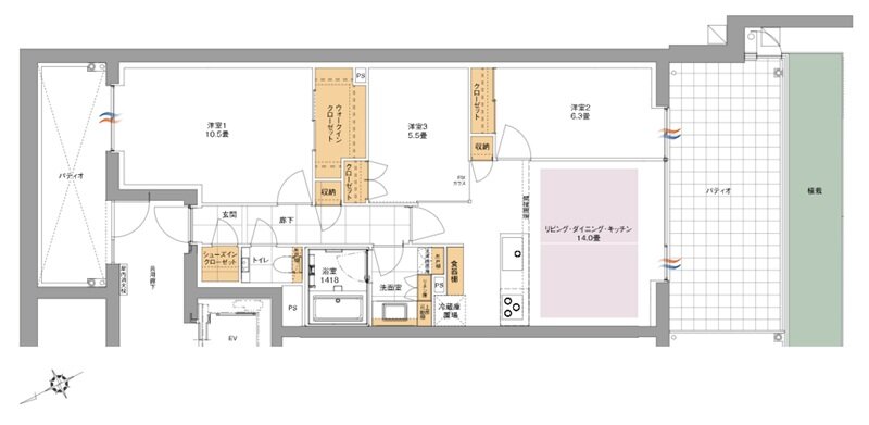
82.21㎡、92.30㎡
- 間取り
-
3LDK
間取りを見る(1件)
- 販売スケジュール
-
先着順申込受付中

