- 価格
-
7130万円
月々の支払い額を見る
- 専有面積
-
57.94㎡
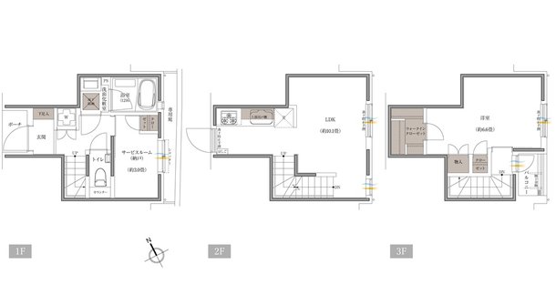
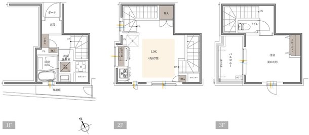
- 間取り
-
1LDK+S
間取りを見る(1件)
- 販売スケジュール
-
先着順

