- 価格
-
3210万円~4570万円
月々の支払い額を見る
- 専有面積
-
58.00㎡~81.52㎡
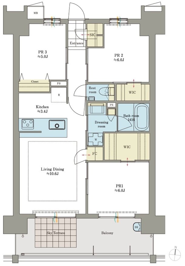
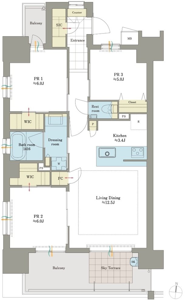
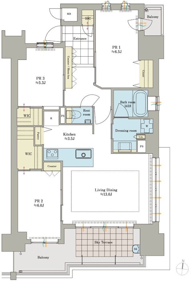
- 間取り
-
2LDK+WIC+FC+SIC~3LDK+2WIC+P+SIC
間取りを見る(4件)
- 販売スケジュール
-
先着順申込受付中

