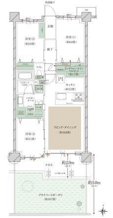
間取り
この物件の詳細情報に戻るT:テラス PG:プライベートガーデン BW:ビッグウォークインクロゼット W:ウォークインクロゼット
※掲載の間取りは、計画段階の図面を基に簡略化して描き起こしたものです。施工上の理由等のため、今後変更になる場合がございます。
※リビング・ダイニングの畳数表記については、リビング・ダイニングの扉より内側の面積からキッチンの面積を差し引いたもので算出しております。
関連する他の物件も見てみる
特徴
- 子どもと暮らす(67)
- 対面キッチン(65)
- ウォークインクローゼット(64)
- 可変式間仕切り(62)
- I型キッチン(61)
- モデルルーム公開中(52)
- 床暖房(51)
- 食器洗い乾燥機(食洗機)(48)
- 宅配ボックス(48)
- 複層ガラス(ペアガラス)(47)
- 浴室暖房換気乾燥機(45)
- 販売前・販売予定(44)
- ペット可(40)
- 複数沿線利用可能(39)
- ハンズフリーキー(37)
- エコマンション(35)
- 24時間ゴミ出し可能(29)
- 南向き(28)
- アウトフレーム工法(25)
- 二重床/二重天井(24)
- 東向き(22)
- 即入居可能(22)
- テラス(21)
- ペット共用施設(21)
- 専用庭(17)
- 広いバルコニー(9)
- ミストサウナ(8)
- アイランドキッチン(6)
- メゾネットタイプ(2)
- オープンキッチン(2)
地域
間取り
価格帯
不動産会社
駅
沿線

