ヴェレーナ大宮櫛引町の間取り一覧

お気に入りに
追加する
お気に入りに
追加済み

3LDK掲載5

BW:ビッグウォークインクロゼット
※掲載の間取りは、計画段階の図面を基に簡略化して描き起こしたものです。施工上の理由等のため、今後変更になる場合がございます。
※リビング・ダイニングの畳数表記については、リビング・ダイニングの扉より内側の面積からキッチンの面積を差し引いたもので算出しております。

関連する他の物件も見てみる

ヴェレーナ大宮櫛引町に関連する条件でマンションを探す

特徴

地域

間取り

価格帯

不動産会社

沿線

ヴェレーナ大宮櫛引町 間取り At TYPE
タイプ

At TYPE

間取り

3LDK+T+BW

専有面積

72.00㎡

バルコニー面積

-

備考

テラス面積:16.04㎡

  • 可変式間仕切り
  • ウォークインクローゼット
  • テラス
  • 南向き
ヴェレーナ大宮櫛引町 間取り Dg TYPE
タイプ

Dg TYPE

間取り

3LDK+T+PG+BW

専有面積

68.50㎡

バルコニー面積

-

備考

テラス面積:8.96㎡
プライベートガーデン面積:17.31㎡

  • 可変式間仕切り
  • ウォークインクローゼット
  • テラス
  • 専用庭
  • 南向き
ヴェレーナ大宮櫛引町 間取り R TYPE
タイプ

R TYPE

間取り

3LDK+BW

専有面積

75.40㎡

バルコニー面積

-

備考

バルコニー面積:9.54㎡※4階、9.11㎡※5階
サービススペース面積:2.28㎡

  • 可変式間仕切り
  • ウォークインクローゼット
  • 東向き
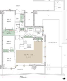
ヴェレーナ大宮櫛引町 間取り Tr TYPE
タイプ

Tr TYPE

間取り

3LDK+R+BW

専有面積

72.77㎡

バルコニー面積

11.56㎡

備考

ルーフバルコニー面積:19.32㎡

  • 可変式間仕切り
  • ウォークインクローゼット
  • 広いバルコニー
  • ルーフバルコニー
  • 東向き
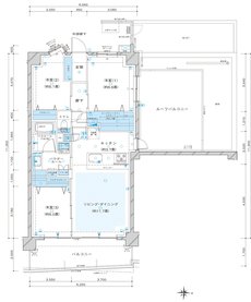
ヴェレーナ大宮櫛引町 間取り Yr TYPE
タイプ

Yr TYPE

間取り

3LDK+R+BW

専有面積

85.10㎡

バルコニー面積

14.42㎡

備考

ルーフバルコニー面積:38.51㎡

  • 可変式間仕切り
  • ウォークインクローゼット
  • 浴室に窓
  • 2面バルコニー
  • L字バルコニー
  • ルーフバルコニー
  • 東向き

このページの一番上へ