ヴェレーナ大宮櫛引町 間取り At TYPE
タイプ

At TYPE

間取り

3LDK+T+BW

専有面積

72.00㎡

バルコニー面積

-

備考

テラス面積:16.04㎡

  • 可変式間仕切り
  • ウォークインクローゼット
  • テラス
  • 南向き
ヴェレーナ大宮櫛引町 間取り Dg TYPE
タイプ

Dg TYPE

間取り

3LDK+T+PG+BW

専有面積

68.50㎡

バルコニー面積

-

備考

テラス面積:8.96㎡
プライベートガーデン面積:17.31㎡

  • 可変式間仕切り
  • ウォークインクローゼット
  • テラス
  • 専用庭
  • 南向き
ヴェレーナ大宮櫛引町 間取り R TYPE
タイプ

R TYPE

間取り

3LDK+BW

専有面積

75.40㎡

バルコニー面積

-

備考

バルコニー面積:9.54㎡※4階、9.11㎡※5階
サービススペース面積:2.28㎡

  • 可変式間仕切り
  • ウォークインクローゼット
  • 東向き
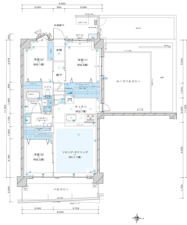
ヴェレーナ大宮櫛引町 間取り Tr TYPE
タイプ

Tr TYPE

間取り

3LDK+R+BW

専有面積

72.77㎡

バルコニー面積

11.56㎡

備考

ルーフバルコニー面積:19.32㎡

  • 可変式間仕切り
  • ウォークインクローゼット
  • 広いバルコニー
  • ルーフバルコニー
  • 東向き
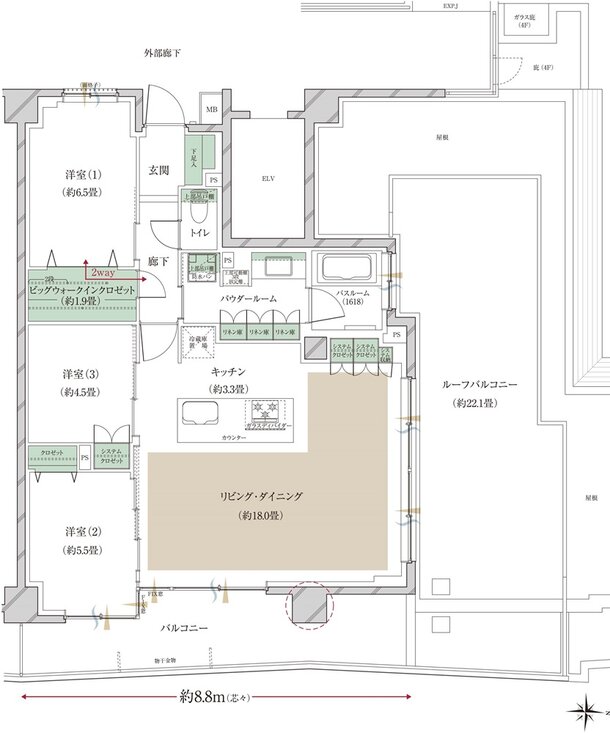
ヴェレーナ大宮櫛引町 間取り Yr TYPE
タイプ

Yr TYPE

間取り

3LDK+R+BW

専有面積

85.10㎡

バルコニー面積

14.42㎡

備考

ルーフバルコニー面積:38.51㎡

  • 可変式間仕切り
  • ウォークインクローゼット
  • 浴室に窓
  • 2面バルコニー
  • L字バルコニー
  • ルーフバルコニー
  • 東向き

このページの一番上へ