- 価格
-
価格未定(予定)
- 専有面積
-
55.9㎡~134.18㎡
- 間取り
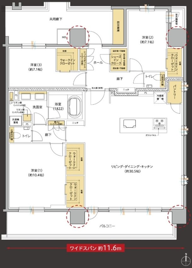
-
2LDK〜4LDK
間取りを見る(4件)
- 販売スケジュール
-
2025年11月上旬 販売開始予定

