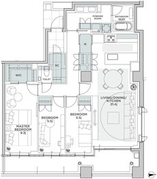
間取り
この物件の詳細情報に戻る※掲載の図面は計画段階のものであり、今後変更となる場合があります。
※バルコニーは管理規約に準じての利用となります。
N:納戸 WIC:ウォークインクローゼット SC:シューズクローク
関連する他の物件も見てみる
特徴
- 子どもと暮らす(110)
- 対面キッチン(105)
- I型キッチン(103)
- ウォークインクローゼット(102)
- 平置き駐車場(89)
- 一人暮らし・二人暮らし向け(81)
- 食器洗い乾燥機(食洗機)(79)
- 複数沿線利用可能(75)
- 複層ガラス(ペアガラス)(70)
- 浴室暖房換気乾燥機(70)
- 床暖房(66)
- ハンズフリーキー(64)
- 玄関からリビングが見えない間取り(57)
- 防災設備(49)
- 販売前・販売予定(45)
- ZEHマンション(44)
- 24時間ゴミ出し可能(43)
- 電気自動車対応(37)
- ラウンジ(35)
- 二重床/二重天井(35)
- アルコーブ(33)
- 出入口が2か所以上あるキッチン(30)
- 省エネ対応(23)
- 東向き(23)
- 内廊下(20)
- 西向き(18)
- 高級マンション・ハイグレードマンション(16)
- IoTマンション(13)
- 丘の上・高台(5)
- 第一種低層住居専用地域(5)
- オープンキッチン(4)
- 太陽光発電(3)
- セパレート型キッチン(1)
地域
間取り
価格帯
不動産会社
駅
沿線

