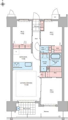
間取り
この物件の詳細情報に戻る2LDK掲載3件
WIC:ウォークインクロゼット FC:ファミリークローク SIC:シューズインクローク P:パントリー
※掲載の図面は、設計段階の図面を基に描き起こしたもので、実際と多少異なる場合があります。
関連する他の物件も見てみる
特徴
- 子どもと暮らす(11)
- ZEHマンション(10)
- 対面キッチン(10)
- ウォークインクローゼット(10)
- 平置き駐車場(10)
- I型キッチン(10)
- 一人暮らし・二人暮らし向け(8)
- スロップシンク(8)
- 防災設備(8)
- 複層ガラス(ペアガラス)(8)
- シューズインクローゼット(7)
- 玄関からリビングが見えない間取り(7)
- モデルルーム公開中(7)
- 駐車場100%以上(7)
- 南向き(6)
- 複数沿線利用可能(6)
- ペット可(5)
- 宅配ボックス(5)
- テラス(5)
- 浴室に窓(4)
- 2面バルコニー(4)
- 広いリビング(4)
- 二重床/二重天井(4)
- 全戸南向き(4)
- 電気自動車対応(4)
- 可変式間仕切り(3)
- ペット共用施設(3)
- 24時間ゴミ出し可能(1)
地域
間取り
価格帯
不動産会社
駅
沿線

