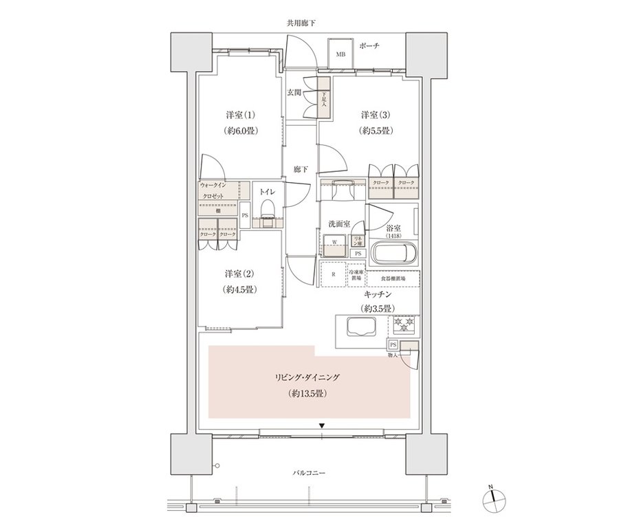
間取り
この物件の詳細情報に戻る※SIC:シューズインクロゼット、WIC:ウォークインクロゼット
※掲載の図面は設計段階のものであり、変更になる場合があります。
※住戸により仕様・形状が異なる場合があります。
※J:畳数(畳数は「約」表示です。)
関連する他の物件も見てみる
特徴
- 子どもと暮らす(38)
- 対面キッチン(37)
- I型キッチン(36)
- ウォークインクローゼット(36)
- 浴室暖房換気乾燥機(30)
- 食器洗い乾燥機(食洗機)(29)
- 平置き駐車場(27)
- 複層ガラス(ペアガラス)(27)
- エコマンション(27)
- 宅配ボックス(24)
- ハンズフリーキー(19)
- 南向き(18)
- 可変式間仕切り(18)
- 床暖房(16)
- 24時間ゴミ出し可能(15)
- シューズインクローゼット(14)
- 玄関からリビングが見えない間取り(13)
- 駅近(駅徒歩5分以内・駅直結)(11)
- 複数沿線利用可能(11)
- 防災設備(9)
- 広いリビング(9)
- 電気自動車対応(7)
- 高級マンション・ハイグレードマンション(2)
地域
間取り
価格帯
不動産会社
駅
沿線

