- 価格
-
2990万円~4390万円
月々の支払い額を見る
- 専有面積
-
56.64㎡~77.13㎡
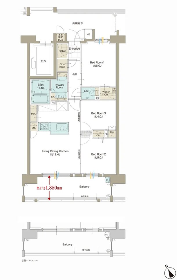
- 間取り
-
2LDK・3LDK
間取りを見る(11件)
- 販売スケジュール
-
先着順申込み受付中

