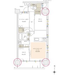
間取り
この物件の詳細情報に戻る2LDK掲載2件
3LDK掲載4件
※掲載の間取り図は図面を基に描き起こしたものであり、実際とは異なる場合があります。
※窓ガラスの種類・種別については、各階平面図をご参照下さい。
WIC:ウォークインクロゼット SC:シューズクロゼット
関連する他の物件も見てみる
特徴
- 子どもと暮らす(186)
- I型キッチン(179)
- 対面キッチン(179)
- ウォークインクローゼット(172)
- 一人暮らし・二人暮らし向け(165)
- 床暖房(157)
- 可変式間仕切り(133)
- 複数沿線利用可能(130)
- 玄関からリビングが見えない間取り(129)
- 食器洗い乾燥機(食洗機)(126)
- 浴室暖房換気乾燥機(112)
- 平置き駐車場(111)
- 宅配ボックス(106)
- 複層ガラス(ペアガラス)(99)
- 高級マンション・ハイグレードマンション(97)
- ペット可(94)
- 2面バルコニー(87)
- 24時間ゴミ出し可能(83)
- 南向き(82)
- エコマンション(78)
- 西向き(78)
- 東向き(74)
- 防災設備(73)
- 二重床/二重天井(71)
- ミストサウナ(49)
- アウトフレーム工法(48)
- 電気自動車対応(45)
- ルーフバルコニー(39)
- 省エネ対応(36)
- バリアフリー(34)
- フラット35(32)
- 南向き中心(27)
- アイランドキッチン(19)
- 中庭(パティオ)(13)
- 遮音フローリング(8)
- ペニンシュラキッチン(7)
- 独立型(クローズ型)キッチン(3)
地域
間取り
価格帯
不動産会社
駅
沿線

