- 価格
-
3360万円~5790万円
月々の支払い額を見る
- 専有面積
-
65.10㎡~83.98㎡
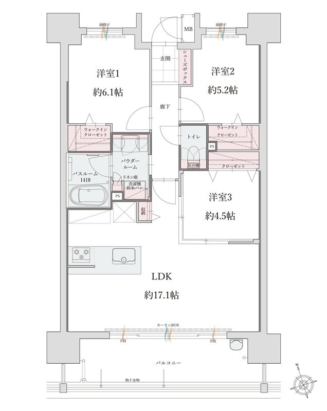
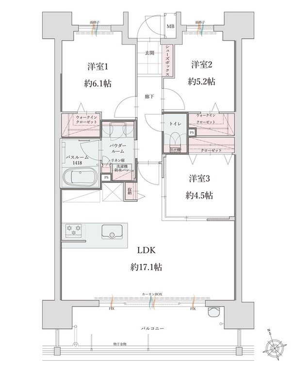
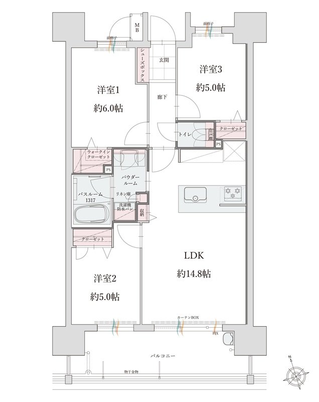
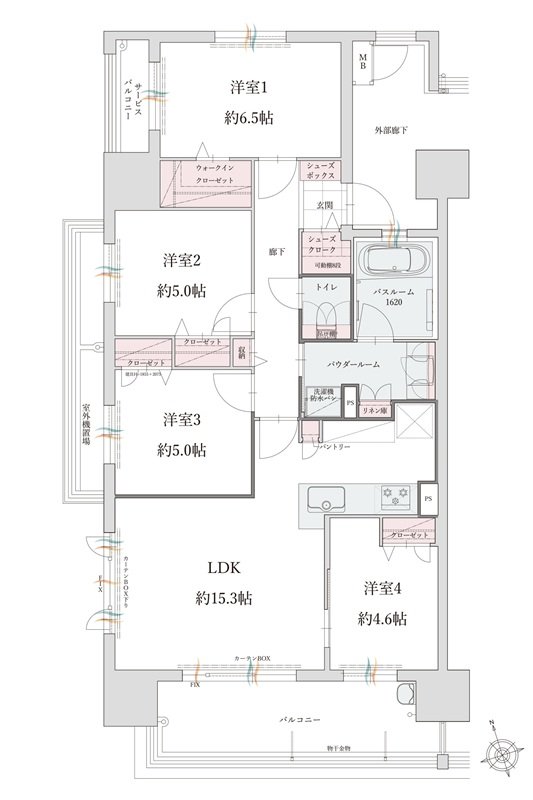
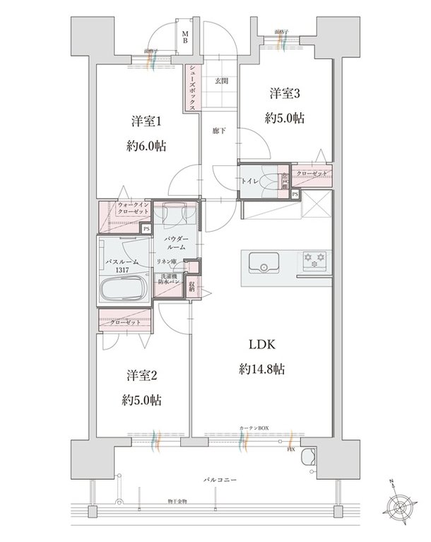
- 間取り
-
3LDK・4LDK
間取りを見る(5件)
- 販売スケジュール
-
先着順申込み受付中

