- 価格
-
5770万円~7880万円
月々の支払い額を見る
- 専有面積
-
80.05㎡~92.07㎡
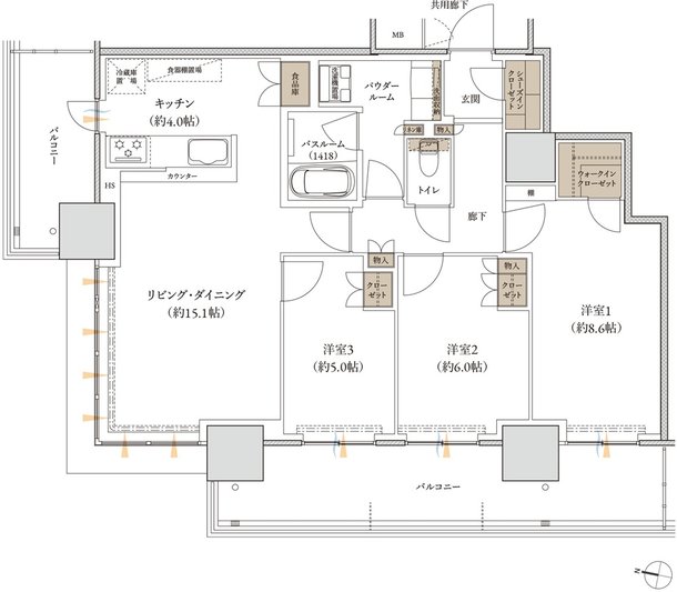
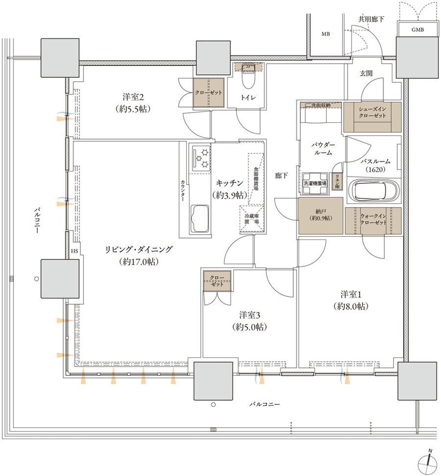
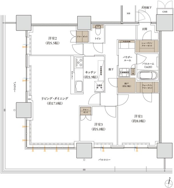
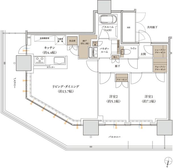
- 間取り
-
3LDK(5戸)
間取りを見る(3件)
- 販売スケジュール
-
先着順申込受付中

