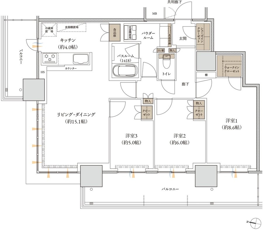
久留米ザ・タワー レジデンシャル 間取り G(e) TYPE
タイプ

G(e) TYPE

間取り

3LDK+N+WIC+SIC

専有面積

92.07㎡

バルコニー面積

38.52㎡

備考

※10〜20階

  • 玄関からリビングが見えない間取り
  • 広いリビング
  • ウォークインクローゼット
  • シューズインクローゼット
  • 出入口が2か所以上あるキッチン
  • 2面バルコニー
  • L字バルコニー
  • 南向き
久留米ザ・タワー レジデンシャル 間取り G(b)・A(b) TYPE
タイプ

G(b)・A(b) TYPE

間取り

3LDK+WIC+SIC

専有面積

86.19㎡

バルコニー面積

-

備考

バルコニー面積:38.27㎡(10・11階)、23.91㎡(12〜34階)
※10〜20階、21〜34階

  • 玄関からリビングが見えない間取り
  • 可変式間仕切り
  • 広いリビング
  • ウォークインクローゼット
  • シューズインクローゼット
  • 出入口が2か所以上あるキッチン
  • 2面バルコニー
  • 北向き
久留米ザ・タワー レジデンシャル 間取り G(m) TYPE
タイプ

G(m) TYPE

間取り

2LDK+N+WIC+SIC

専有面積

70.02㎡

バルコニー面積

30.94㎡

備考

※10〜20階

  • 玄関からリビングが見えない間取り
  • ウォークインクローゼット
  • シューズインクローゼット
  • 出入口が2か所以上あるキッチン
  • 2面バルコニー
  • L字バルコニー
  • 北向き
久留米ザ・タワー レジデンシャル 間取り G(a) TYPE
タイプ

G(a) TYPE

間取り

2LDK+N+SIC

専有面積

63.77㎡

バルコニー面積

17.73㎡

備考

※10〜18階

  • 玄関からリビングが見えない間取り
  • シューズインクローゼット
  • 北向き
久留米ザ・タワー レジデンシャル 間取り G(l) TYPE
タイプ

G(l) TYPE

間取り

1LDK+WIC+SIC

専有面積

53.61㎡

バルコニー面積

14.05㎡

備考

※10〜20階

  • 可変式間仕切り
  • ウォークインクローゼット
  • シューズインクローゼット
  • 東向き

このページの一番上へ