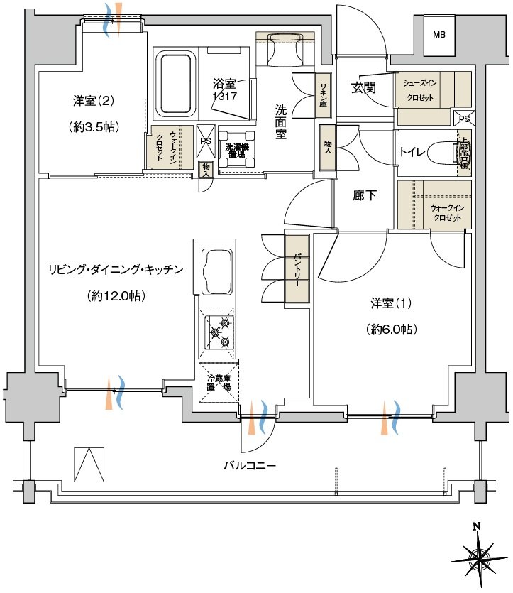
間取り
この物件の詳細情報に戻る2LDK掲載4件
WIC:ウォークインクロゼット SIC:シューズインクロゼット
※掲載の間取図は計画段階の図面を基に描き起こしたものであり今後変更になる可能性があります。家具・調度品等は販売価格に含まれておりません。
代表の間取りを掲載しています。バルコニー・マリオン形状等は階数により異なります。
関連する他の物件も見てみる
特徴
- 対面キッチン(88)
- 子どもと暮らす(88)
- ウォークインクローゼット(86)
- I型キッチン(86)
- 可変式間仕切り(82)
- 床暖房(79)
- 複数沿線利用可能(66)
- 一人暮らし・二人暮らし向け(66)
- 食器洗い乾燥機(食洗機)(61)
- 浴室暖房換気乾燥機(61)
- 宅配ボックス(59)
- シューズインクローゼット(56)
- 複層ガラス(ペアガラス)(52)
- 平置き駐車場(51)
- 販売前・販売予定(49)
- 玄関からリビングが見えない間取り(46)
- ZEHマンション(44)
- エコマンション(43)
- 防災設備(39)
- 駅近(駅徒歩5分以内・駅直結)(36)
- 二重床/二重天井(33)
- 南向き(31)
- 全戸南向き(19)
- 出入口が2か所以上あるキッチン(16)
- 浴室に窓(8)
地域
間取り
不動産会社
駅
沿線

