- 価格
-
4748万円~5998万円
月々の支払い額を見る
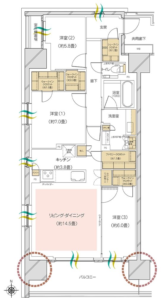
- 専有面積
-
67.52㎡~74.02㎡
- 間取り
-
3LDK
間取りを見る(5件)
- 販売スケジュール
-
先着順申込受付中 ●申込受付時間/10:00~18:00(水・木定休※祝日は除く)

