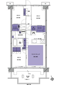
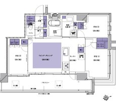
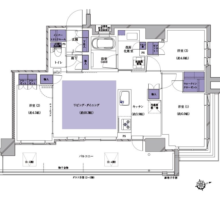
間取り
この物件の詳細情報に戻る3LDK掲載14件
WIC:ウォークインクローゼット、SIC:シューズインクローゼット、N:納戸、ITR:インナートランクルーム
※掲載の間取りは設計段階のもので、今後変更になる可能性がございます。
関連する他の物件も見てみる
特徴
- I型キッチン(37)
- 対面キッチン(37)
- 子どもと暮らす(36)
- ウォークインクローゼット(36)
- 床暖房(34)
- 可変式間仕切り(34)
- 一人暮らし・二人暮らし向け(31)
- 宅配ボックス(30)
- 複数沿線利用可能(28)
- モデルルーム公開中(28)
- 食器洗い乾燥機(食洗機)(28)
- シューズインクローゼット(26)
- 浴室暖房換気乾燥機(26)
- 平置き駐車場(26)
- 複層ガラス(ペアガラス)(25)
- 24時間ゴミ出し可能(24)
- ペット可(24)
- 販売前・販売予定(22)
- ラウンジ(22)
- ハンズフリーキー(22)
- 大規模マンション(21)
- 玄関からリビングが見えない間取り(20)
- 南向き(19)
- ZEHマンション(18)
- アウトフレーム工法(16)
- 東向き(15)
- テラス(13)
- 出入口が2か所以上あるキッチン(13)
- 西向き(11)
- 即入居可能(10)
- 南向き中心(7)
- トランクルーム(5)
- 浴室に窓(4)
地域
間取り
価格帯
不動産会社
駅
沿線

