- 価格
-
7800万円~2億9960万円
月々の支払い額を見る
- 専有面積
-
47.32㎡~101.55㎡
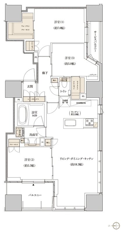
- 間取り
-
2LDK~3LDK
間取りを見る(12件)
- 販売スケジュール
-
登録申込受付期間:2026年2月14日(土)10:00~2026年2月16日(月)15:00

