- 価格
-
価格未定(予定)
- 専有面積
-
62.33㎡~80.18㎡
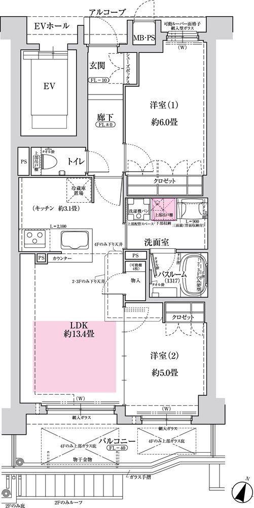
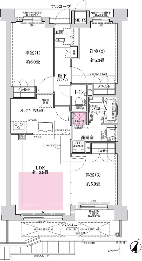
- 間取り
-
1LDK + S ~ 3LDK
間取りを見る(3件)
- 販売スケジュール
-
販売予定時期:2026年3月下旬

