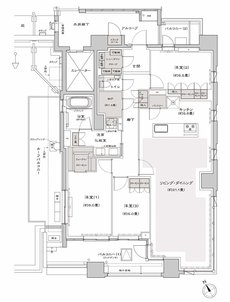
間取り
この物件の詳細情報に戻る3LDK掲載10件
WIC:ウォークインクローゼット
N:納戸
SIC:シューズインクローク
TR:トランクルーム
※掲載の図面は計画段階のものであり、今後変更になる可能性があります。
関連する他の物件も見てみる
特徴
- 子どもと暮らす(111)
- 対面キッチン(107)
- I型キッチン(104)
- ウォークインクローゼット(103)
- 平置き駐車場(88)
- 食器洗い乾燥機(食洗機)(84)
- 可変式間仕切り(83)
- 一人暮らし・二人暮らし向け(81)
- 浴室暖房換気乾燥機(77)
- 南向き(76)
- 複数沿線利用可能(74)
- 宅配ボックス(71)
- ハンズフリーキー(69)
- 床暖房(69)
- 玄関からリビングが見えない間取り(66)
- エコマンション(66)
- シューズインクローゼット(61)
- 駅近(駅徒歩5分以内・駅直結)(59)
- 駐車場100%以上(49)
- 24時間ゴミ出し可能(47)
- 販売前・販売予定(42)
- スロップシンク(41)
- ラウンジ(38)
- 2面バルコニー(35)
- アルコーブ(33)
- 出入口が2か所以上あるキッチン(30)
- ディスポーザー(27)
- 東向き(27)
- 広いリビング(24)
- 浴室に窓(20)
- 高級マンション・ハイグレードマンション(19)
- L型キッチン(16)
- 南西向き(15)
- テラス(14)
- トランクルーム(14)
- テレワーク・在宅勤務におすすめ(7)
- 第一種低層住居専用地域(6)
- ルーフバルコニー(6)
- ハイサッシ(5)
- 天井カセット型エアコン(2)
地域
間取り
価格帯
不動産会社
駅
沿線

