- 価格
-
6488万円、7618万円
月々の支払い額を見る
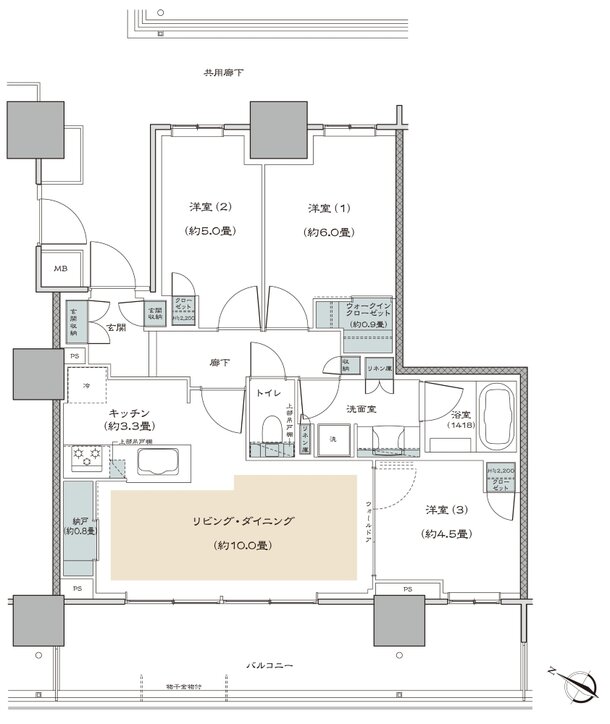
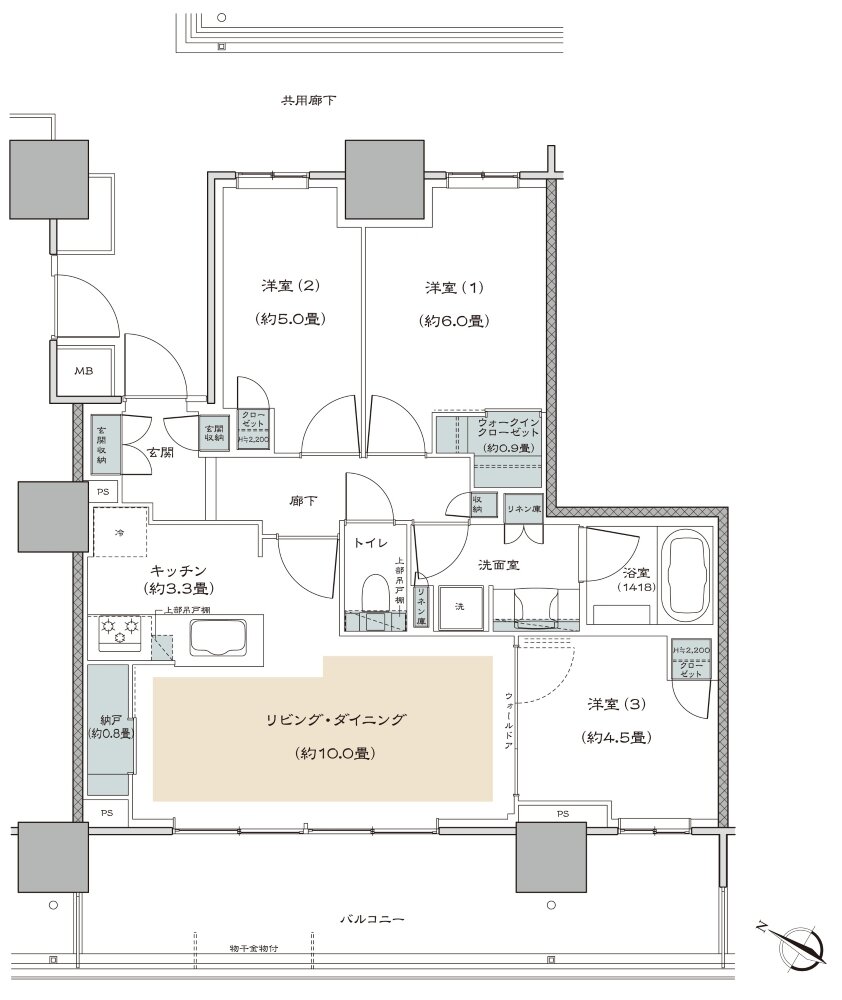
- 専有面積
-
68.18㎡、70.34㎡
- 間取り
-
3LDK
間取りを見る(5件)
- 販売スケジュール
-
先着順申込受付中

