- 価格
-
4238万円~8318万円
月々の支払い額を見る
- 専有面積
-
62.44㎡~98.96㎡
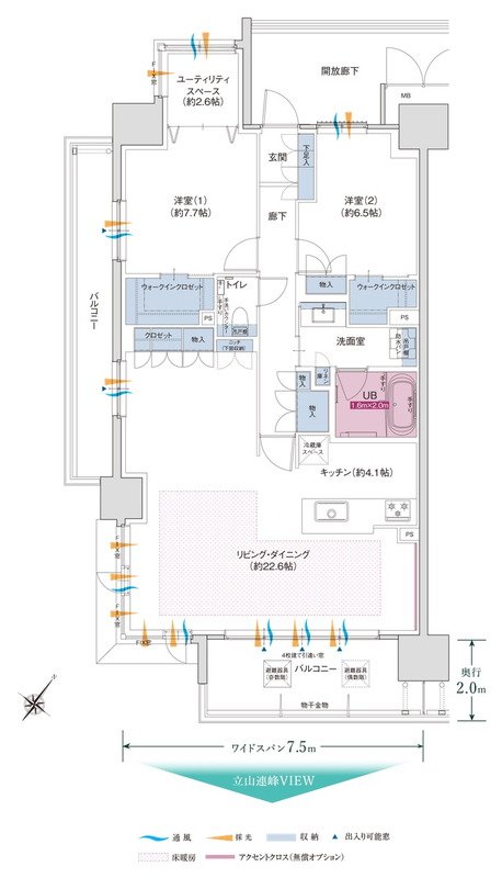
- 間取り
-
2LDK、3LDK
間取りを見る(13件)
- 販売スケジュール
-
先着順申込受付中

